EasyManua.ls Logo

Bryant 581A/B - Page 247

Bryant 581A/B
268 pages
Print Icon
To Next Page IconTo Next Page
To Next Page IconTo Next Page
To Previous Page IconTo Previous Page
To Previous Page IconTo Previous Page
Loading...
247
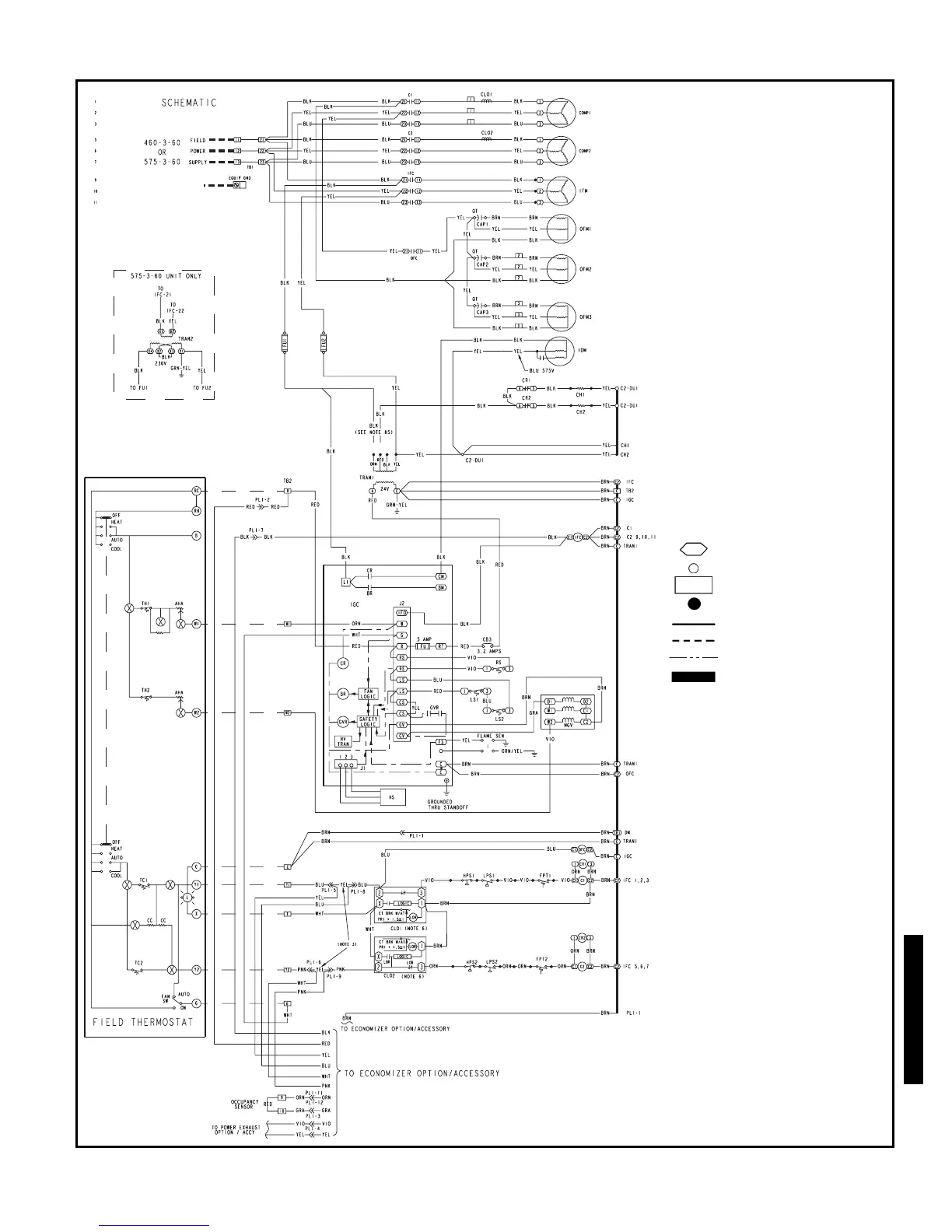
TYPICAL WIRING SCHEMATICS — 581A
LEGEND
AHA Adjustable Heat Anticipator
C—Contactor, Compressor
CAP Capacitor
CB Circuit Breaker
CC Cooling Compensator
CH Crankcase Heater
CLO Compressor Lockout
COMP Compressor Motor
CR Control Relay
DM Damper Motor
DU Dummy Terminal
EQUIP Equipment
FPT Freeze Protection Thermostat
FU Fuse
GND Ground
HPS High-Pressure Switch
HS Hall Effect Sensor
HV High Voltage
I—Ignitor
IDM Induced Draft Motor
IFC Indoor Fan Contactor
IFM Indoor (Evaporator) Fan Motor
IGC Integrated Gas Unit Controller
L—Light
LOR Lockout Relay
LPS Low-Pressure Switch
LS Limit Switch
MGV Main Gas Valve
OFC Outdoor Fan Contactor
OFM Outdoor Fan Motor
PL Plug Assembly
PRI Primary
QT Quadruple Terminal
RS Rollout Switch
SW Switch
TB Terminal Block
TC Thermostat-Cooling
TH Thermostat-Heating
TRAN Transformer
Terminal (Marked)
Terminal (Unmarked)
Terminal Block
Splice
Factory Wiring
Field Wiring
Option/Accessory Wiring
To indicate common potential
only. Not to represent wiring.
581A155, 460-3-60 Shown
a48-7474
581A155-300

Related product manuals