EasyManua.ls Logo

Burnham ES2 ES2 - Page 28

Burnham ES2 ES2
52 pages
Print Icon
To Next Page IconTo Next Page
To Next Page IconTo Next Page
To Previous Page IconTo Previous Page
To Previous Page IconTo Previous Page
Loading...
28
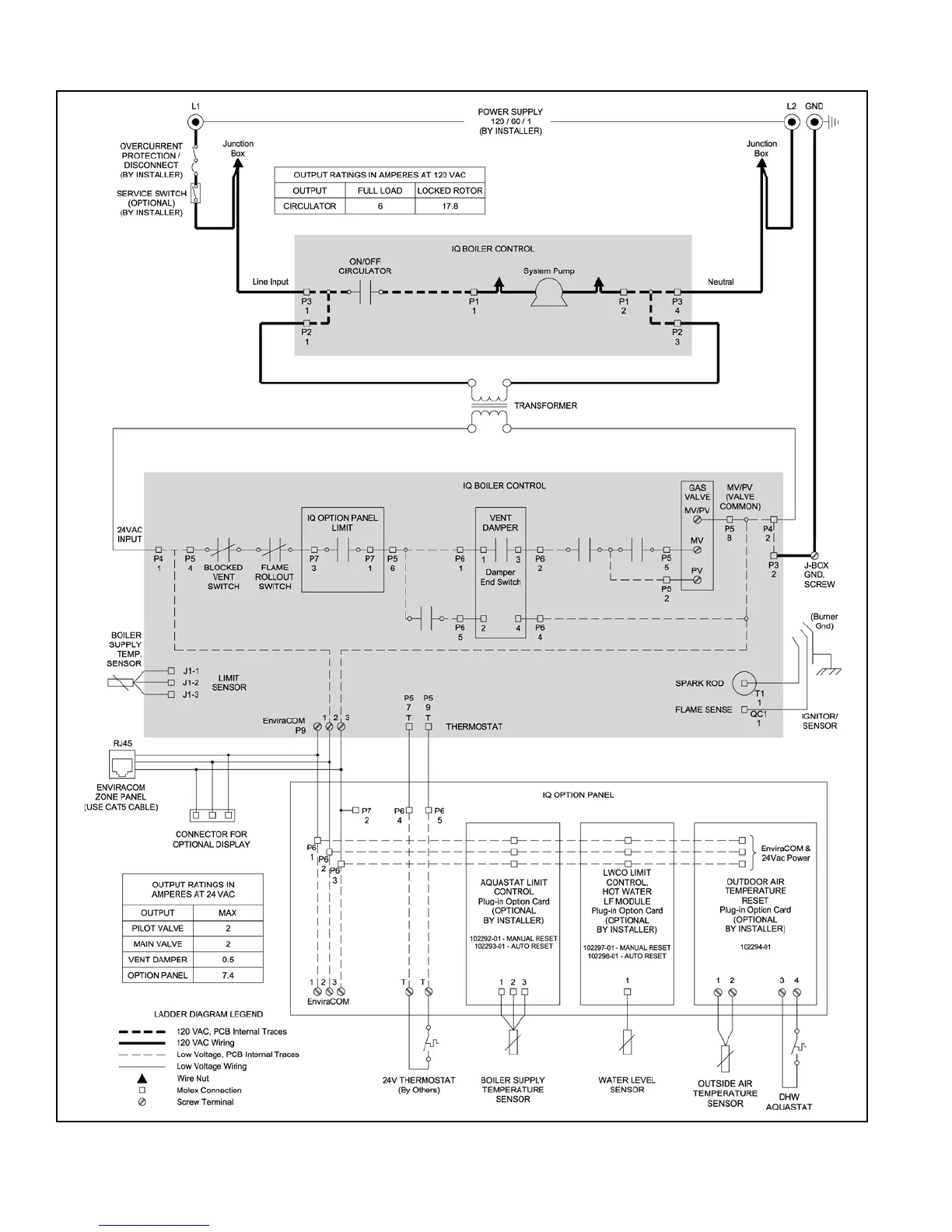
INTERNAL WIRING (continued)
Figure IW-2: Wiring Schematic

Related product manuals