EasyManua.ls Logo

Burnham MPC - Page 32

Burnham MPC
108 pages
Print Icon
To Next Page IconTo Next Page
To Next Page IconTo Next Page
To Previous Page IconTo Previous Page
To Previous Page IconTo Previous Page
Loading...
32
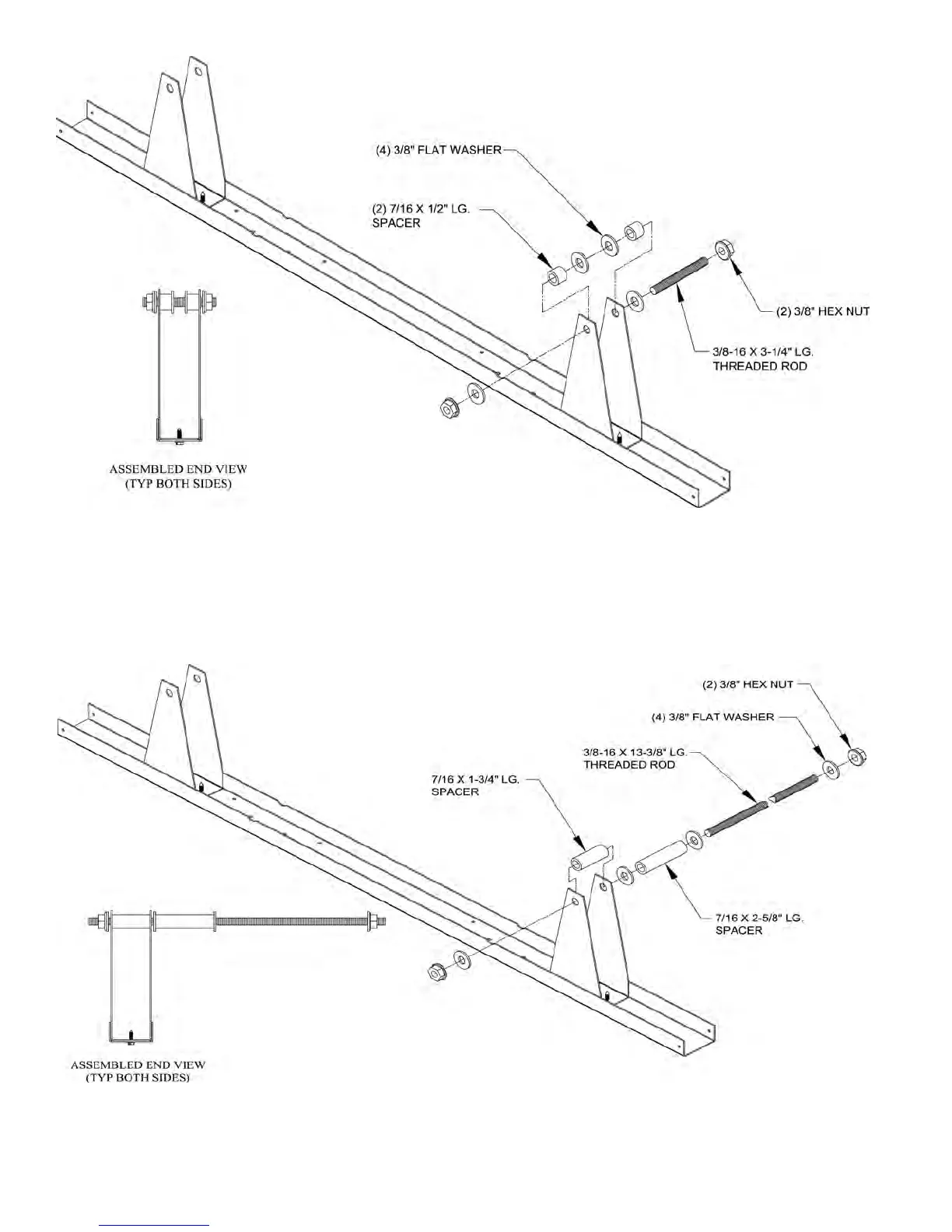
Figure 17a: Front/Center Section Horizontal
Channel Assembly w/Mounting Hardware
Figure 17b: Rear Section Horizontal Channel
Assembly w/Mounting Hardware

Related product manuals