EasyManua.ls Logo

cabur PLUS EV - Installation on Stand

cabur PLUS EV
49 pages
Print Icon
To Next Page IconTo Next Page
To Next Page IconTo Next Page
To Previous Page IconTo Previous Page
To Previous Page IconTo Previous Page
Loading...
15
6.9 Installation on stand
If the user decides not to install on the wall but on the dedicated stand, provided as accessory,
the following steps shall be performed. Please note that, in this case, the screws and fixing
accessories must be provided by the installer depending on the different conditions of the
installation site.
Step
No.
Description
Picture
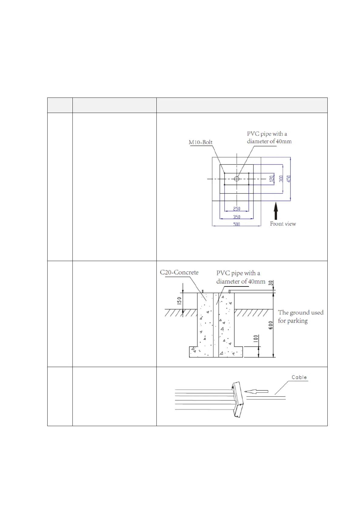
1
Select a stable and solid
concrete platform to fix the
stand. In case such a platform is
not available, pour a dedicated
platform.
The platform must be equipped
with M10 bolts and a 40 mm
diameter PVC conduit
embedded below the base.
The top part of the platform
must be flat to have a safe and
stable installation, avoiding
dangerous breaks of the stand.
In case of newly poured
concrete platform, wait until it
is solidified before proceeding.
2
The depth of the M10 bolts
buried in the poured platform
shall be not less than 150mm,
while the exposed length is
recommended to be in the
range from 15 to 30mm.
The power cables, arriving
through the PVC conduit shall
be pulled out not less than
1.3m from the ground, to allow
an easy installation of the
cable.
3
Incline the stand in order to
insert the cable through the
bottom side. Make the cable
pass through, until it reaches
the outlet in the middle of the
stand. Pull the cable out of this
outlet