EasyManua.ls Logo

Cafe CDD420P2TS1 - Cabinetry Requirements; Cabinet Dimensions; Minimum Clearances

Cafe CDD420P2TS1
24 pages
Print Icon
To Next Page IconTo Next Page
To Next Page IconTo Next Page
To Previous Page IconTo Previous Page
To Previous Page IconTo Previous Page
Loading...
9
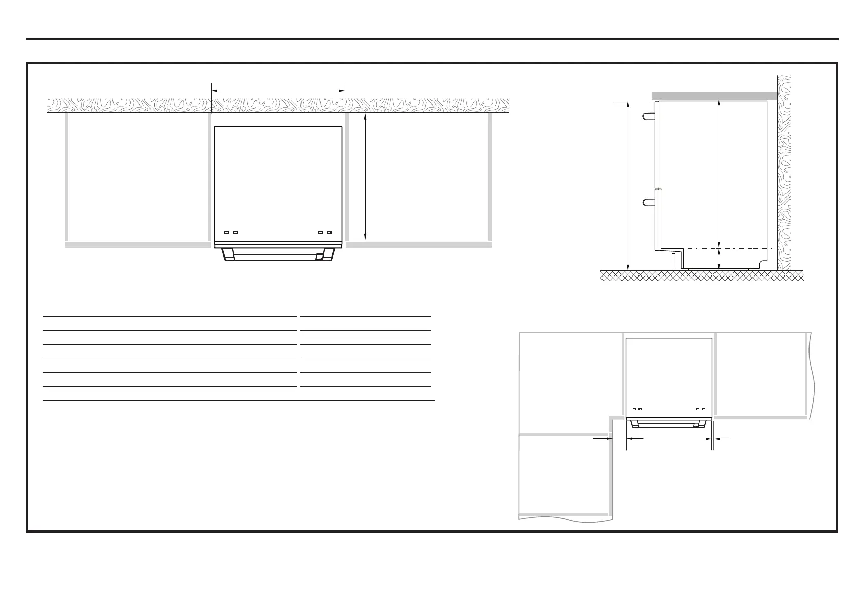
Minimum clearances from adjacent cabinetry
Bracket slots
R
Q
P
S
T
SIDE
PLAN
min. 1/2” (13 mm)
clearance from a
corner cabinet
min. 1/16” (2 mm)
clearance to adjacent
cabinet door
Installation Preparation
CABINETRY DIMENSIONS
CABINETRY DIMENSIONS INCHES (MM)
P Inside height of cavity* min. 34” (864)
Q Inside width of cavity 23 5/8” (600)
R Inside depth of cavity min. 22 1/16” (560)
S Recommended height of adjacent cabinet space 30” (762)
T Height of toekic K space* 3 15/16” - 6 5/16” (100-160)
* depending on adjustment of leveling feet

Related product manuals