EasyManua.ls Logo

Calorex Pro-Pac 30 - Page 147

Calorex Pro-Pac 30
156 pages
Print Icon
To Next Page IconTo Next Page
To Next Page IconTo Next Page
To Previous Page IconTo Previous Page
To Previous Page IconTo Previous Page
Loading...
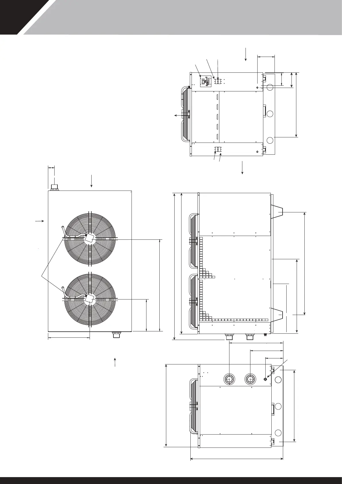
PROPAC PPT90M/MY
DIMENSIONES EN mm
CUESTION 2
PERMITIR 500mm ACCEDER A LOS
PANELES DE SERVICIO
CONEXIONES DE AGUA 3" BSPM
CONDENSADO 1½" BSPM
SALIDA DE
AIRE
ENTRADA DE
AIRE
CONSOLA
CONMUTADOR
AP
CONMUTADOR
BP
CONMUTADOR
AP
CONMUTADOR
BP
ENTRADA DE
AIRE
PANEL DE
SERVICIO
CONDENSADO FUERA DE LA BASE
CONDENSADO
FUERA DE LA
BASE
PANEL DE
SERVICIO
ENTRADA
DE RED
*FIJAR LOS CENTROS PARA
ASEGURAR LA MAQUINA
PANEL DE
SERVICIO
VENTILADOR NOMINAL
DIAMETRO 710
PANEL DE
SERVICIO
PANEL DE
SERVICIO
596
458
1321
90
987
215
187
250
IO
21
2095
751
BASE
1099
CONDENSADO FUERA DE LA
BASE
*1470
2006
VENTILADOR 2
VENTILADOR1
PANEL DE
SERVICO
SALIDA
DE AGUA
ENTRADA
DE AGUA
1350
1190
*1105
465
252
762
DRENAJE
CONDENSADO FUERA DE LA
43
SD566252 ISSUE 51

Table of Contents

Other manuals for Calorex Pro-Pac 30

Related product manuals