EasyManua.ls Logo

Calorex Pro-Pac 30 - Installation Drawings

Calorex Pro-Pac 30
156 pages
Print Icon
To Next Page IconTo Next Page
To Next Page IconTo Next Page
To Previous Page IconTo Previous Page
To Previous Page IconTo Previous Page
Loading...
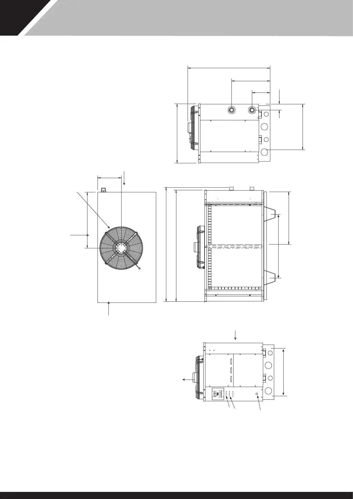
10.0 INSTALLATION DRAWINGS
Pro-Pac 30M/MY
DIMENSIONS IN mm
ISSUE 1
ALLOW 500mm FOR ACCESS TO SERVICE PANELS
WATER CONNECTIONS 1.5" BSPM
CONDENSATE 1.5"
NOMINAL FAN
DIAMETER 500
SERVICE
PANEL
SERVICE
PANEL
SERVICE
PANEL
316
752
1486
1555
EEE
C
D
D
E
WATER
OUT
WATER
IN
713
CONDENSATE OUT
POSITION IN BASE
*880
CONSOLE
HP SWITCH
LP SWITCH
(AUTO RESET LP
SWITCH ON Y
MACHINES)
AIR IN
MAINS IN
AIR OUT
SERVICE
PANEL
SERVICE PANEL
ELECTRIC BOX
ACCESS
IO
*683
*FIXING CENTRES TO SECURE MACHINE
SERVICE
PANEL
609
CONDENSATE OUT
POSITION IN BASE
790
1080
235
502
80
37
SD566252 ISSUE 51

Table of Contents

Other manuals for Calorex Pro-Pac 30

Related product manuals