EasyManua.ls Logo

Calorex Pro-Pac 30 - Refrigeration Diagrams

Calorex Pro-Pac 30
156 pages
Print Icon
To Next Page IconTo Next Page
To Next Page IconTo Next Page
To Previous Page IconTo Previous Page
To Previous Page IconTo Previous Page
Loading...
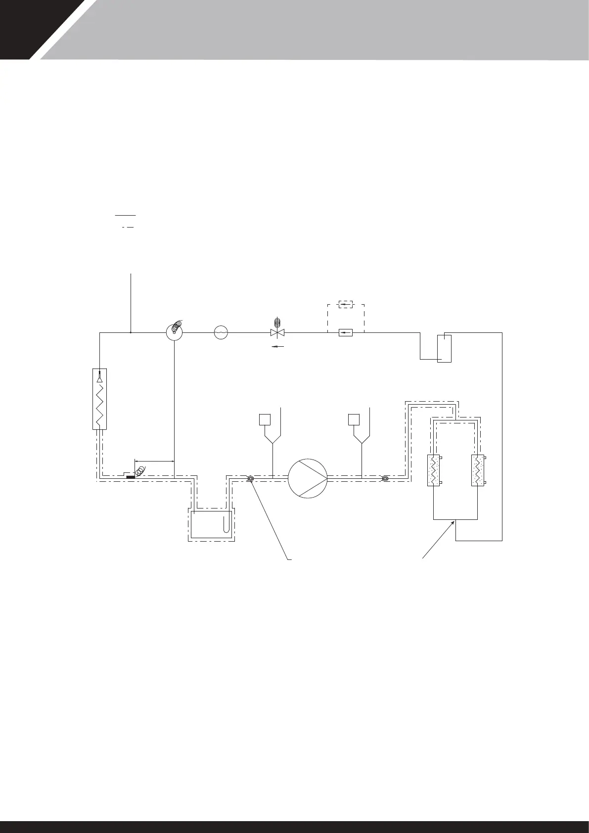
LP
HP
EVAPORATOR
PROCESS
PORT
TEV
LIQUID
INDICATOR
SOLENOID
VALVE
DRIER 70/140
DRIER
RECEIVER
150.00
MIN
TEV PHIAL
SUCTION
ACCUMULATOR
COMPRESSOR
WATER
CONDENSERS
NOTES
1. DENOTES INSULATION
VIBRATION
ELIMINATOR
LP
SERVICE
SCHRADER
NOTE CONDENSER
REFRIGERANT CIRCUITS
TO BE JOINED IN
PARALLEL
PROPAC M FRIDGE CIRCUIT
NOTE PROPAC 90/140 USES 2 FRIDGE CIRCUITS.
HP
SERVICE
SCHRADER
13.0 REFRIGERATION DIAGRAMS
49
SD566252 ISSUE 51

Table of Contents

Other manuals for Calorex Pro-Pac 30

Related product manuals