EasyManua.ls Logo

Calorex Pro-Pac 30 - Page 40

Calorex Pro-Pac 30
156 pages
Print Icon
To Next Page IconTo Next Page
To Next Page IconTo Next Page
To Previous Page IconTo Previous Page
To Previous Page IconTo Previous Page
Loading...
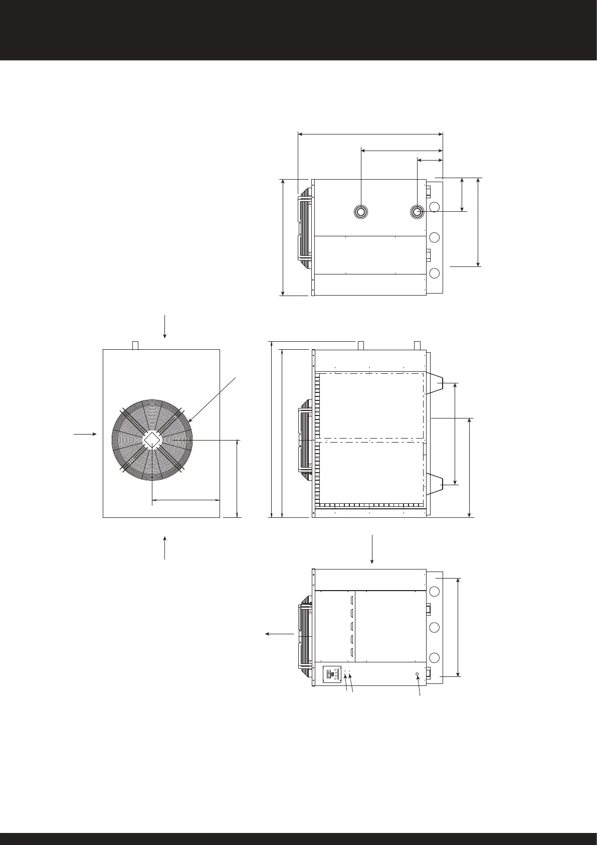
Pro-Pac PPT45M/MY
DIMENSIONS IN mm
ISSUE 1
ALLOW 500mm FOR ACCESS TO SERVICE PANELS
WATER CONNECTIONS 2" UNION
CONDENSATE 1½" BSPM
SERVICE
PANEL
NOMINAL FAN
DIAMETER 730
SERVICE
PANEL
735
610
SERVICE
PANEL
1590
1665
WATER
IN
WATER
OUT
1054
CONDENSATE OUT
POSITION IN BASE
*985
AIR IN
AIR OUT
CONSOLE
HP SWITCH
LP SWITCH
(AUTO RESET LP
SWITCH ON Y
MACHINES)
SERVICE PANEL
ELECTRIC BOX
ACCESS
SERVICE
PANEL
MAINS IN
0 1
*970
*FIXING CENTRES TO SECURE MACHINE
SERVICE
PANEL
850
CONDENSATE OUT
POSITION IN BASE
232
742
1330
1060
297
40
SD566252 ISSUE 51
PR0-PAC SYSTEM OWNER INSTALLATION MANUAL

Table of Contents

Other manuals for Calorex Pro-Pac 30

Related product manuals