EasyManua.ls Logo

Calorex Pro-Pac 30 - Page 42

Calorex Pro-Pac 30
156 pages
Print Icon
To Next Page IconTo Next Page
To Next Page IconTo Next Page
To Previous Page IconTo Previous Page
To Previous Page IconTo Previous Page
Loading...
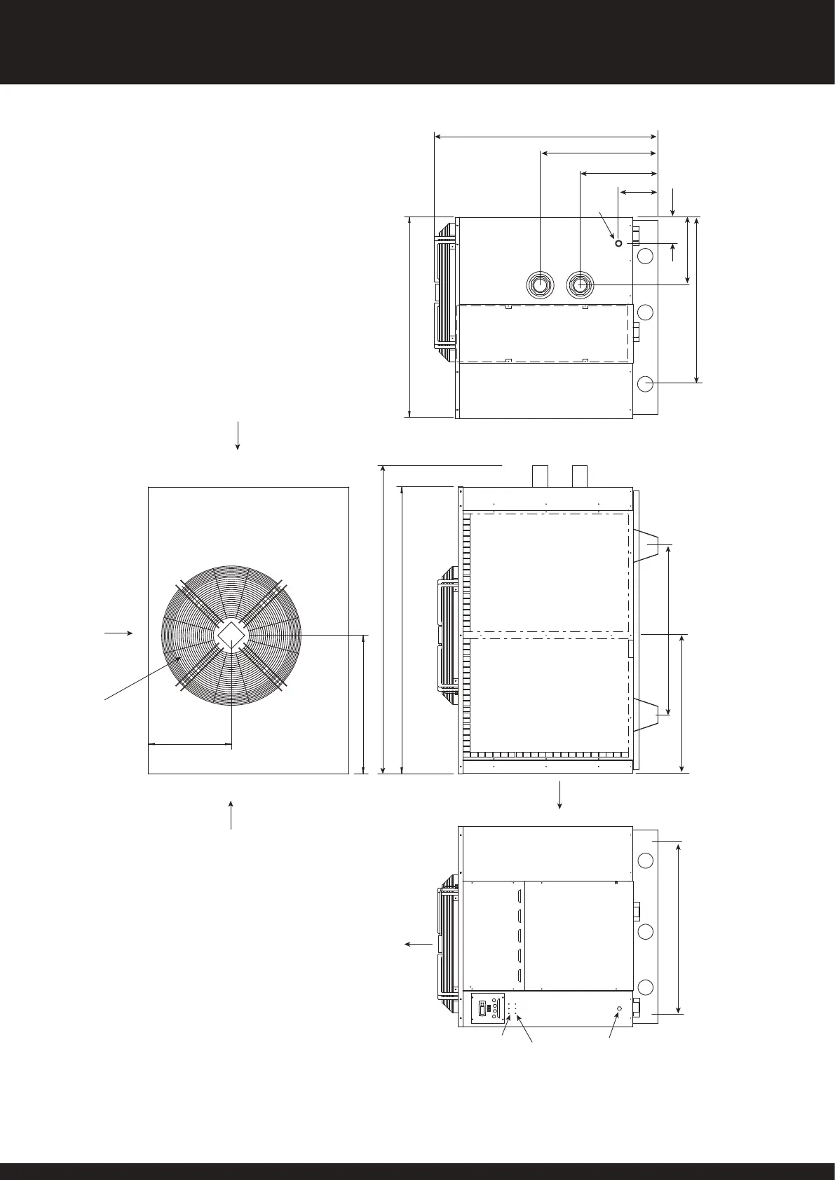
Pro-Pac PPT70
DIMENSIONS IN mm
ISSUE 1
ALLOW 500mm FOR ACCESS TO SERVICE PANELS
WATER CONNECTIONS 3" BSPM
CONDENSATE 1½" BSPM
AIR OUT
446
837
SERVICE
PANEL
SERVICE PANEL
NOMINAL FAN
DIAMETER 815
SERVICE PANEL
1736
1840
WATER
OUT
WATER
IN
AIR IN
866
CONDENSATE OUT
POSITION IN BASE
SERVICE
PANEL
SERVICE PANEL
ELECTRIC BOX
ACCESS
CONSOLE
HP
SWITCH
LP
SWITCH
MAINS
IN
0 1
*1110
*1000
*FIXING CENTRES TO SECURE MACHINE
232
156
1310
457
936
CONDENSATE OUT
POSITION IN BASE
692
401
1190
SERVICE
PANEL
DRAIN
DOWN
42
SD566252 ISSUE 51
PR0-PAC SYSTEM OWNER INSTALLATION MANUAL

Table of Contents

Other manuals for Calorex Pro-Pac 30

Related product manuals