EasyManua.ls Logo

Calorex Pro-Pac 30 - Page 91

Calorex Pro-Pac 30
156 pages
Print Icon
To Next Page IconTo Next Page
To Next Page IconTo Next Page
To Previous Page IconTo Previous Page
To Previous Page IconTo Previous Page
Loading...
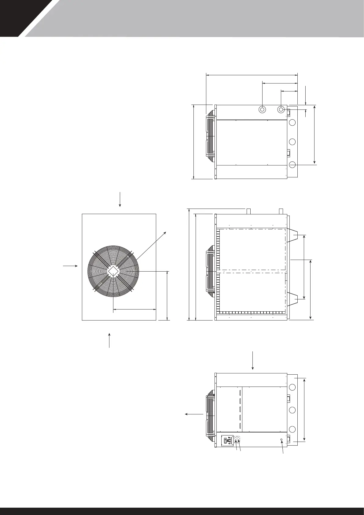
PROPAC PP45M/MY
DIMENSIONS EN mm
EDITION 1
LAISSER 500mm D'ESPACE
POUR ACCEDER AUX
PANNEAUX DE SERVICE
CONNEXIONS D'EAU 1.5" BPSM
CONDENSAT 1.5"
1590
1665
ENTREE
D'EAU
SORTIE
D'EAU
PANNEAU DE
SERVICE
DIAMETRE DU
VENTILATEUR 730
735
610
PANNEAU DE
SERVICE
PANNEAU
DE SERVICE
CONDENSAT SORTANT
DE LA BASE
1054
*985
235.5
502.5
65
1060
1310
PANNEAU
DE
SERVICE
850
CONDENSAT SORTANT
DE LA BASE
65
ENTREE
D'AIR
SORTIE D'AIR
CONSOLE
BOUTON DE
REARMEMENT HP
PANNEAU
ELECTRIQUE DE
SERVICE
PANNEAU
DE
SERVICE
ALIMENTATION
BOUTON DE
REARMEMENT BP
(AUTO RESET
SUR MODELES "Y")
0 1
*970
*POINTS DE RACCORDEMENT
POUR FIXER LA MACHINE AU SOL
39
SD566252 ISSUE 51

Table of Contents

Other manuals for Calorex Pro-Pac 30

Related product manuals