EasyManua.ls Logo

Calorex Pro-Pac 30 - Page 93

Calorex Pro-Pac 30
156 pages
Print Icon
To Next Page IconTo Next Page
To Next Page IconTo Next Page
To Previous Page IconTo Previous Page
To Previous Page IconTo Previous Page
Loading...
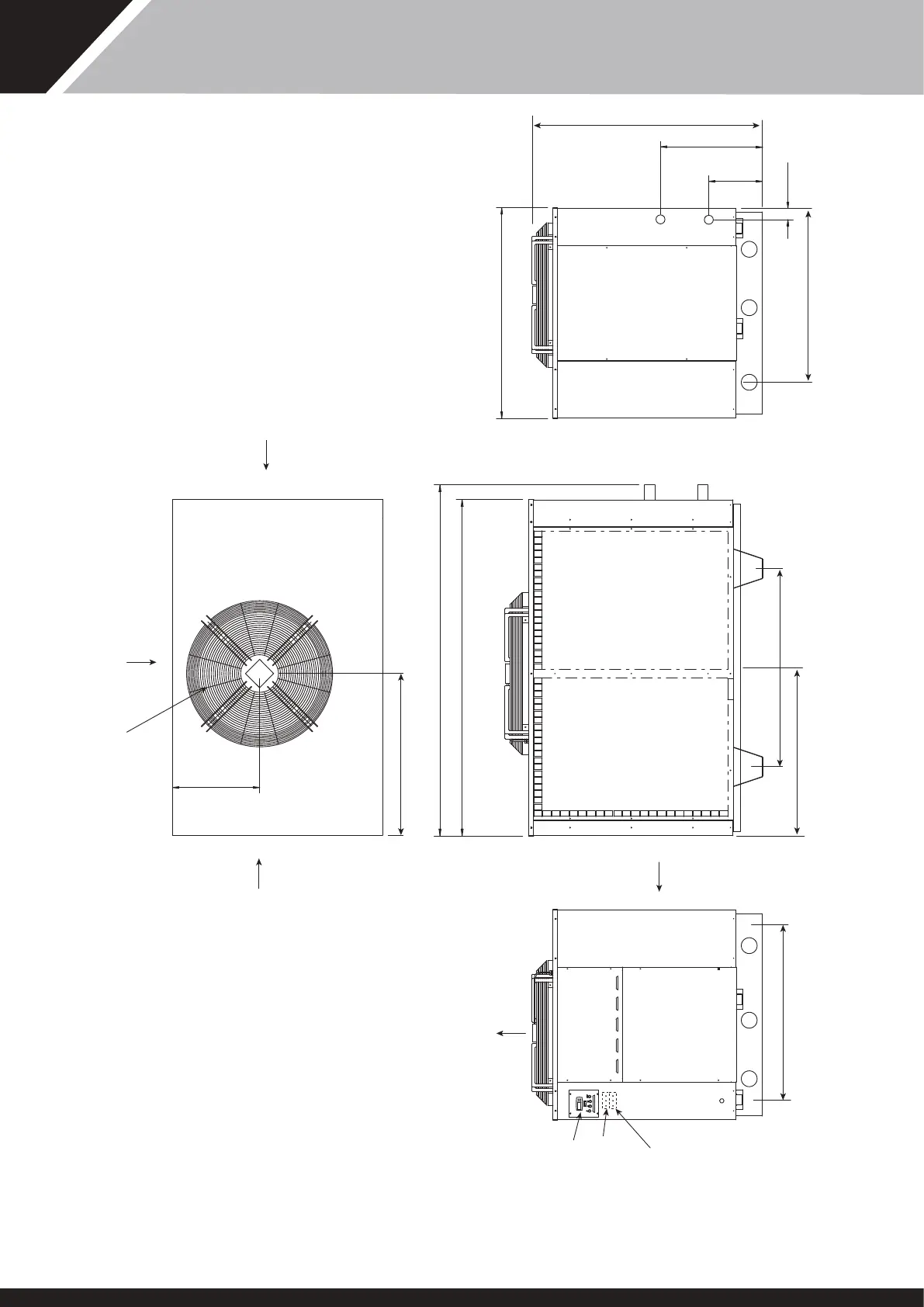
PROPAC 70
DIMENSIONS EN mm
EDITION 1
LAISSER 500mm D'ESPACE POUR
ACCEDER AUX PANNEAUX DE
SERVICE
CONNEXIONS D'EAU 1.5" BSPM
CONDENSAT 1.5"
1736
1810
SORTIE
D'EAU
ENTREE
D'EAU
PANNEAU DE
SERVICE
PANNEAU DE
SERVICE
PANNEAU DE
SERVICE
DIAMETRE DU
VENTILATEUR 815
302.50
569.50
65
1190
PANNEAU
DE
SERVICE
1310
936
CONDENSAT SORTANT
DE LA BASE
CONDENSAT SORTANT
DE LA BASE
866
*1000
446
837
BOUTON DE
REARMEMENT
HP
BOUTON DE
REARMEMENT
LP
ENTREE
D'AIR
SORTIE D'AIR
PANNEAU
DE
SERVICE
PANNEAU
ELECTRIQUE
DE SERVICE
CONSOLE
0 1
*1110
*POINTS DE RACCORDEMENT
POUR FIXER LA MACHINE AU SOL
41
SD566252 ISSUE 51

Table of Contents

Other manuals for Calorex Pro-Pac 30

Related product manuals