EasyManua.ls Logo

Calorex Pro-Pac 30 - Page 95

Calorex Pro-Pac 30
156 pages
Print Icon
To Next Page IconTo Next Page
To Next Page IconTo Next Page
To Previous Page IconTo Previous Page
To Previous Page IconTo Previous Page
Loading...
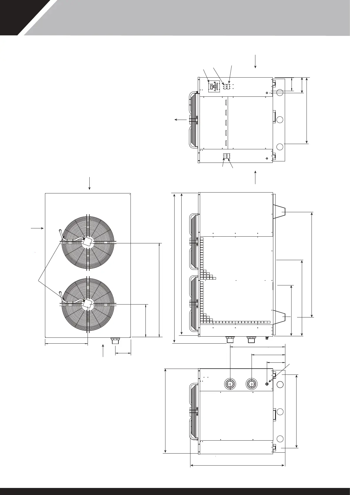
PROPAC 90
DIMENSIONS EN mm
EDITION 2
LAISSER 500mm D'ESPACE POUR
ACCEDER AUX PANNEAUX DE
SERVICE
CONNEXIONS D'EAU 3" BSPM
CONDENSAT 1.5" (x2)
PANNEAU DE
SERVICE
*POINTS DE RACCORDEMENT POUR
FIXER LA MACHINE AU SOL
SORTIE
D'AIR
PANNEAU DE
SERVICE
ENTREE
D'AIR
PANNEAU
ELECTRIQUE DE
SERVICE
BOUTON
REARMEMENT
HP
ENTRE
D'AIR
CONDENSAT SORTANT DE LA BASE
BOUTON
REARMEMENT
HP
BOUTON
REARMEMENT
BP (AUTO
RESET SUR
MODELES "Y")
CONDENSAT
SORTANT DE
LA BASE
SORTIE
D'EAU
ENTREE
D'EAU
VENTILATEUR 1
VENTILATEUR 2
DIAMETRE DES
VENTITATEURS 710
PANNEAU DE
SERVICE
PANNEAU DE
SERVICE
596
458
1321
215
2095
2006
751
CONDENSAT SORTANT DE LA
BASE
1099
CONDENSAT SORTANT DE LA
BASE
*1470
CONSOLE
987
215
187
1350
1190
*1105
465
252
762
VIDANGE
PANNEAU DE
SERVICE
BOUTON
REARMEMENT
BP (AUTO
RESET SUR
MODELES "Y")
43
SD566252 ISSUE 51

Table of Contents

Other manuals for Calorex Pro-Pac 30

Related product manuals