EasyManua.ls Logo

Camus Hydronics DFW1100 - 5.6.1 SERVICE PARTS; 5.6.2 IGNITION MODULE LOCKOUT FUNCTIONS; 5.6.3 DIAGNOSTIC STATUS INDICATION; 5.6.4 FLAME SENSE TEST

Camus Hydronics DFW1100
53 pages
Print Icon
To Next Page IconTo Next Page
To Next Page IconTo Next Page
To Previous Page IconTo Previous Page
To Previous Page IconTo Previous Page
Loading...
22
source much like a proven standing pilot before the gas
valves are energized. The ignition control proves the
presence of the proper ignition temperatures from the hot
surface igniter using a proof current (2.7A +/- 0.2),
energizes the main gas valves, proves the presence of
main burner flame, and provides for lockouts. A status point
alarm of Flame Fail will be displayed on the main panel and
also by 3 flashes from the ignition module diagnostic red
LED
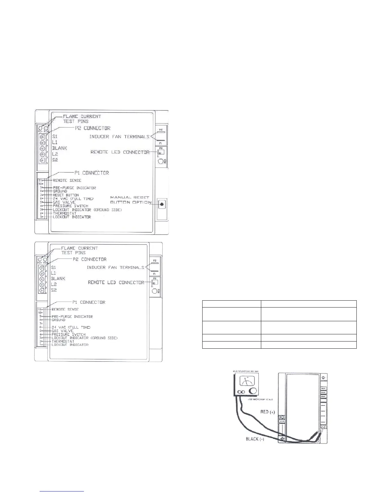
Figure 14 – Ignition Module
Manual Reset
Automatic Reset
5.6.1 SERVICE PARTS
This appliance uses a proved electronic ignition control
module and a hot surface igniter. The electronic ignition
module is not repairable. Any modification or repairs will
invalidate the warranty and may create hazardous
conditions that result in property damage, personal injury,
fire, explosion and/or toxic gases. A faulty hot surface
igniter or ignition module MUST be replaced with a new
factory approved unit only. A factory approved igniter,
ignition control module and flame sensor for this specific
unit is available from your local distributor. DO NOT use
general purpose field replacement ignition modules, igniters
or sensors. Each appliance has one ignition module, one
hot surface igniter and one flame sensor.
5.6.2 IGNITION MODULE LOCKOUT FUNCTIONS
The ignition module may lockout in either a hard lockout
condition requiring pushing of the reset button to recycle
the control for a CSD1 requirement or a soft lockout
condition which may be reset by momentarily cycling the
main power on and off. A typical hard lockout fault for the 7
seconds one try CSD1 module is a flame failure condition.
Pushing the reset button on the ignition control is the only
way to reset an ignition module that is in a hard lockout
condition. The reset button is located on the front control
panel. The reset button is active after the post purge cycle
when there is a hard lockout condition as indicated by the
Status LED (3 flashes). Turning the main power “OFF” and
then “ON” or cycling the thermostat will not reset a hard
lockout condition. Wait five seconds after turning on the
main power before pushing the reset button when the
ignition module is in a hard lockout. Wait for the status LED
to glow solid red indicating that the ignition module is ready
before releasing the reset button.
The ignition module will go into a soft lockout with the
standard 10 seconds module after three sequential trials for
ignition separated by 15 seconds between trials. A soft
lockout condition will operate the combustion air fan for the
post purge cycle (maximum 10 minutes) and then go into
lockout and stay in this mode with the air flow light “OFF”.
The flame failure and all other lights up to the air flow light
will remain “ON”. If the control sensed fault is not corrected,
the ignition module will continue in the soft lockout
condition. A soft lockout condition may be reset by
manually cycling the electronic thermostat or turning the
main power switch “OFF” and then “ON” after the control
sensed fault has been corrected.
5.6.3 DIAGNOSTIC STATUS INDICATION
The ignition module has an LED that indicates the status of
the ignition safety circuits. The flashing operation of this
LED indicates the diagnostic status of the ignition control
module. The following listing gives the flashing diagnostic
status codes as signaled by the ignition module.
Table 12
CODE CONDITION
LED
constant on
System OK – no faults present
LED off
Possible control fault – check
power or no call for heat.
3 flashes
Ignition lockout
6 flashes
Internal fault replace control
5.6.4 FLAME SENSE TEST
Figure 15 – Ignition Module Flame Sense Test
Using a µA meter the flame signal can be measured with
the appliance running. The ignition modules requires

Table of Contents

Related product manuals