EasyManua.ls Logo

Caple RiL1795 - The Parts of the Appliance and Compartments

Caple RiL1795
28 pages
Print Icon
To Next Page IconTo Next Page
To Next Page IconTo Next Page
To Previous Page IconTo Previous Page
To Previous Page IconTo Previous Page
Loading...
Instruction manual RiL1795
Please keep this instruction manual for future reference
11
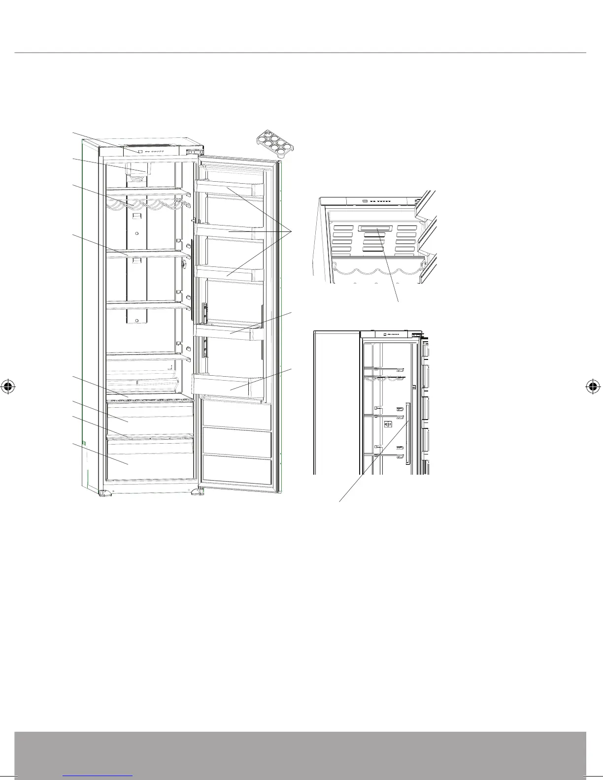
THE PARTS OF THE APPLIANCE
AND THE COMPARTMENTS
9
THE PARTS OF THE APPLIANCE AND THE
COMPARTMENTS
1
2
3
4
5
6
7
8
9
10
12
13
This presentation is only for information about the parts of the appliance. Parts
may vary according to the appliance model.
1. Control panel
2. Turbo fan
3. Wine rack
4. Fridge shelves
5. Upper crisper cover
6. Upper crisper
7. Bottom crisper cover
8. Bottom crisper
9. Bottle shelf
10. Door shelf (Adjustable door shelf *)
11. Door shelf
12. Egg holder
13. Upper side LED strip *
14. Left / Right side LED strip *
* In some models
14
11
1. Control panel
2. Turbo fan
3. Wine rack
4. Fridge shelves
5. Upper draw cover
6. Humidity controlled
vegetable draw
7. Bottom draw cover
8. Bottom draw
9. Bottle shelf
10. Easy adjustable
door balcony
11. Door balcony
12. Egg holder
13. Upper side LED strip
14. Left / Right side LED strip
This presentation is only for information about the parts of the appliance. Parts may
vary according to the appliance model.
RIL1795_Larder Instruction Manual.indd 11 07/02/2017 10:35

Related product manuals