EasyManua.ls Logo

Carefree Compass - Switch Installation for LEDs

Carefree Compass
15 pages
Print Icon
To Next Page IconTo Next Page
To Next Page IconTo Next Page
To Previous Page IconTo Previous Page
To Previous Page IconTo Previous Page
Loading...
Carefree of Colorado Installation Manual Compass
070035-001r1 11
OPTIONAL LED’S
LED options available on the Compass:
1) White LED strip mounted in the roller tube with the power harness routed through the canopy.
2) RGB LED strip mounted in the roller tube with the power harness routed through the canopy.
3) White LED strip mounted at the awning rail (strip holder is sewn to the canopy).
4) RGB LED strip mounted at the awning rail (strip holder is sewn to the canopy).
SWITCH INSTALLATION FOR LED'S
A single pole switch and 2A fuse is required for the white LED installations and is optional for RGB
installations. For RGB lights, the single pole switch is used as an optional power on/off control allowing the
lights to be shut off if the awning is retracted with the lights on.
NOTES:
a) Installers may choose to furnish the control switch. The installation requires that the power line
(+12VDC) be attached to a dedicated 2A circuit breaker or a 2A in-line fuse must be installed
between the switch and power source. For easy access, locate the fuse close to the switch.
b) Per RVIA Low Voltage Systems in Conversion and Recreation Vehicles Chapter 3, Section 3-1: For
Carefree LED strip lighting near the awning rail: when the 24AWG power harness is spliced or
connected 10" or less from the harness connector using a heavier gauge wire, the fuse size is
determined by the heavier wire gauge.
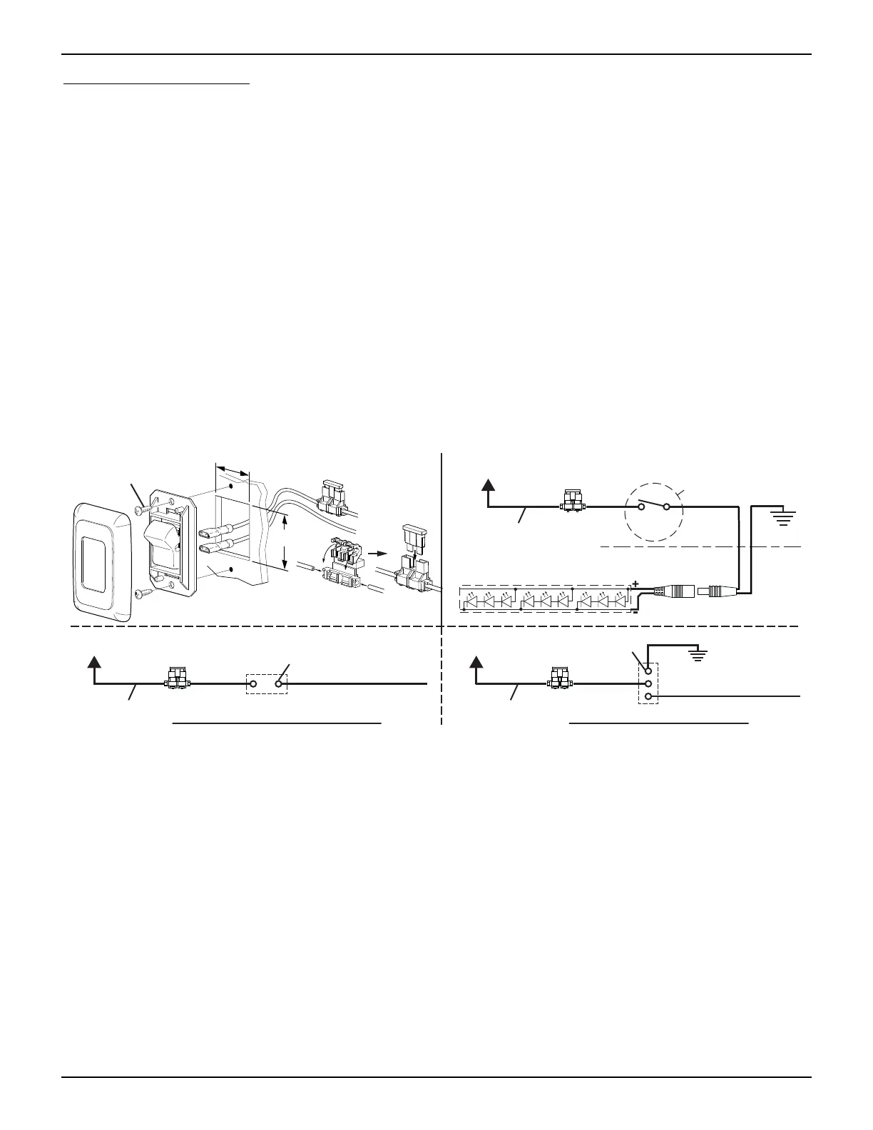
1. Determine the location of the switch.
2. At the switch location, cut a 1 1/8" x 1 1/2" hole.
3. Wire the switch as shown. Wire terminals at the switch are .187, 18-24 awg female disconnects.
NOTE: Allow adequate slack in the 12VDC power line so that the in-line fuse (installed in step 4) can be
accessed from behind the switch.
4. Install the in-line fuse:
4.1. Near the switch, cut the red 12VDC power line to the switch. Do not strip the insulation.
4.2. Insert a wire end into one of the wire channels until it butts up against the stop.
4.3. Fold that half of the connector body over until the element contacts the wire. Use pliers to crimp
the connector closed.
4.4. Repeat for the second wire end.
4.5. Slide the fuse into the fuse port. Ensure that is firmly seated.
5. Press the in-line fuse, wires and switch into the mounting hole. Secure the switch using two (2) #6 x
1/2" screws.
6. Snap the switch bezel over the switch frame.
LED020
LED Strip
Vehicle Wall
Red
+12VDC
GND
Switch
18awg Wire
(minimum)
Red
Black
2A In-line Fuse
See Switch Detail
ON
OFF
2A In-line Fuse
(+12VDC Line)
Red
+12VDC
Single Pole, Single Throw Switch
18awg Wire
(minimum)
Red (from power harness)
18-24awg
Female Disconnect (x2)
2A In-line Fuse
GND
Red
+12VDC
Lighted Single Throw Switch
18awg Wire
(minimum)
Red (from power harness)
2A In-line Fuse
18-24awg
Female Disconnect (x2)
1.13"
1.5"
#6 x 1/2" Screw (x2)

Related product manuals