EasyManua.ls Logo

Carel pCO3 series - Page 61

Carel pCO3 series
84 pages
To Next Page IconTo Next Page
To Next Page IconTo Next Page
To Previous Page IconTo Previous Page
To Previous Page IconTo Previous Page
Loading...
pCO Sistema
Code: +030220336 - rel. 1.5 - 22/12/10
61
pCO
pCOpCO
pCO
c
cc
c
G
G0
230/24 Vac
M
OUT
+V
Digital output 1
Digital output 2
Digital output 3
Digital output 4
Digital output 5
Digital output 12
Digital output 10
Digital output 11
Analogue output 1 (0+10Vdc)
Analogue output 1 (0+10Vdc)
Digital input 11 (230Vac)
Digital input 12 (230Vac)
Digital input 1
Digital input 2
Digital input 3
Digital input 4
Digital input 5
Digital input 6
Digital input 7
Digital input 8
Digital input 9
Digital input 10
Carel NTC probe 1
Carel NTC probe 2
Carel NTC probe 3
Carel NTC probe 4
Probe 6
(0 1Vdc o/or 4 20mA)
Probe 5
(0 1Vdc o/or 4 20mA)
Probe 7*
(0 1Vdc o/or 4 20mA)
Carel NTC probe 8
Digital output 9
Digital output 8
Digital output 7
Digital output 6
Digital output 13
L
N
J17J11J20J21J22J24
J1J2J3J4J5J6
B8
+24Vdc
B7
B6
AVSS
B5
B4
AVSS
B3
B2
AVSS
B1
IDCM2
ID10
ID9
ID8
ID7
ID6
IDCM1
ID5
ID4
ID3
ID2
ID1
C1
NO1
-------
C2
NO2
C3
NO3
-------
C4
NO4
-------
C5
NO5
-------
C12
NO12
NO8
C8
-------
NO7
C7
-------
NO6
C6
-------
NO13
C13
NO11
C11
NC11
--------
NO10
C10
NC10
--------
NO9
C9
NC9
ID230
ID24
ID11R
--------
ID12R
ID24
ID230
VG0
VG1
Y1
Y0
G
G0
J19
pCO
c
I/O board
GND
RX/TX-
RX/TX+
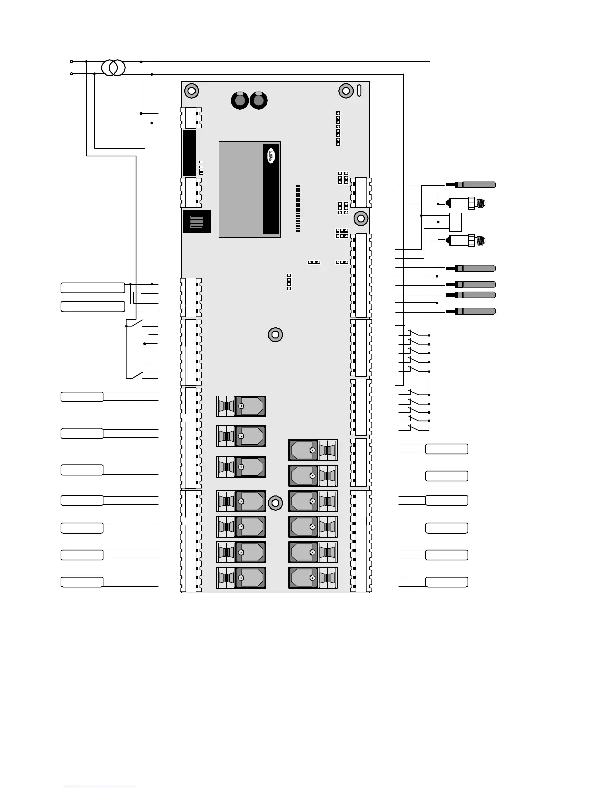
Fig. 8.d
Fig. 8.dFig. 8.d
Fig. 8.d

Table of Contents

Related product manuals