EasyManua.ls Logo

Carrier 19XL series - Page 78

Carrier 19XL series
80 pages
To Next Page IconTo Next Page
To Next Page IconTo Next Page
To Previous Page IconTo Previous Page
To Previous Page IconTo Previous Page
Loading...
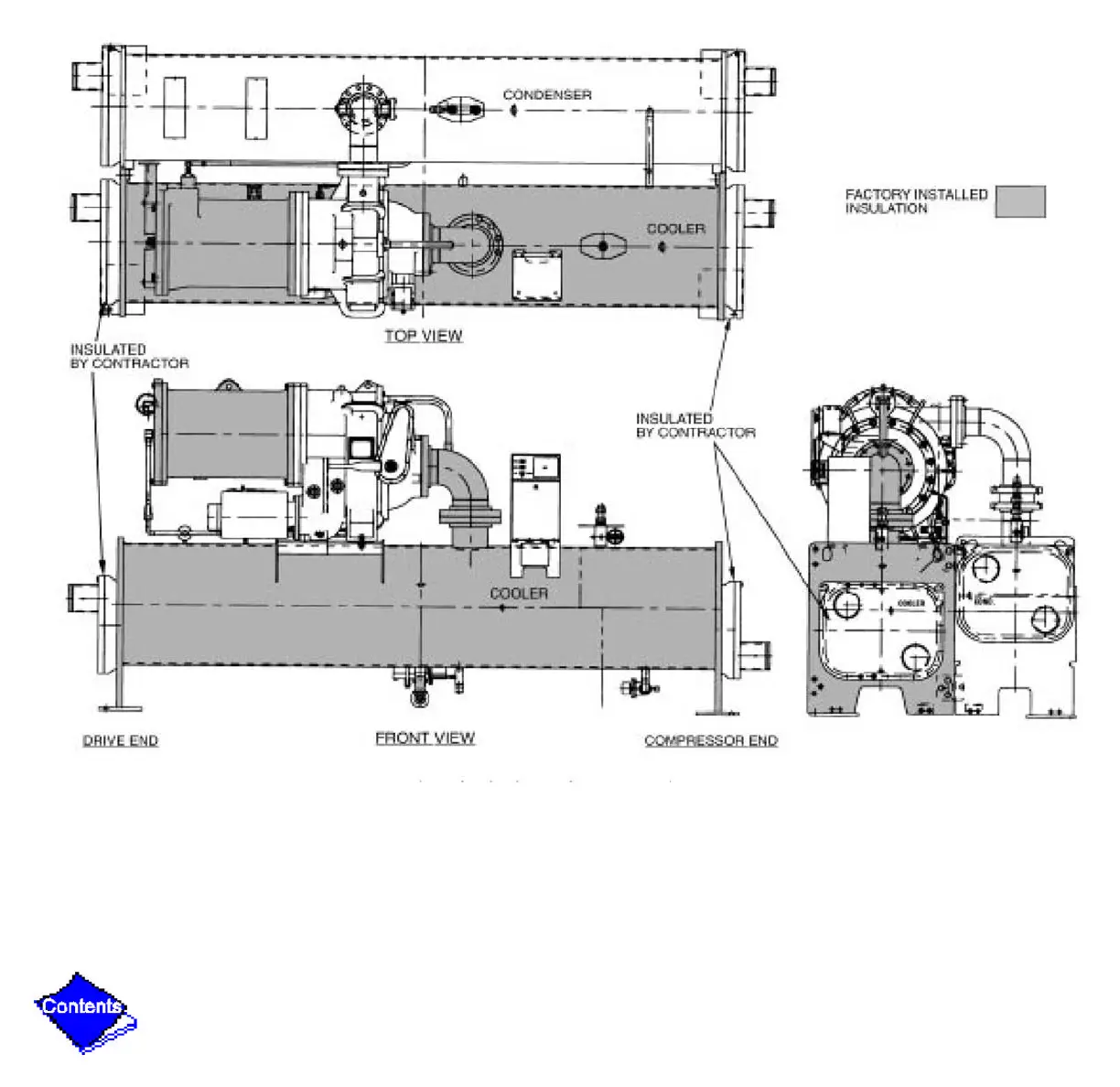
Figure 30 — 19XL Insulation Area

Related product manuals