EasyManua.ls Logo

Carrier 48TC 17 Series - PremierLink and RTU-OPEN Control Wiring Diagrams

Carrier 48TC 17 Series
96 pages
To Next Page IconTo Next Page
To Next Page IconTo Next Page
To Previous Page IconTo Previous Page
To Previous Page IconTo Previous Page
Loading...
90
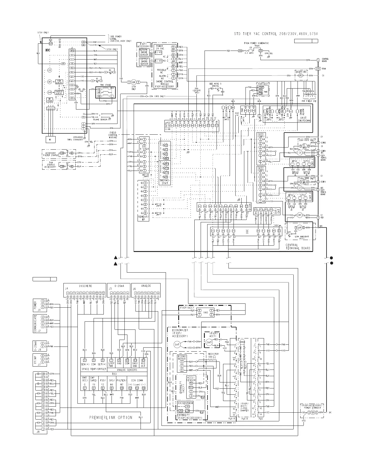
APPENDIX IV. WIRING DIAGRAMS (cont)
50HE500891 F
50HE500751 J
C12263
Fig. 81 PremierLinkt System Control Wiring Diagram

Related product manuals