EasyManua.ls Logo

Carrier 50TCQA - Page 3

Carrier 50TCQA
48 pages
To Next Page IconTo Next Page
To Next Page IconTo Next Page
To Previous Page IconTo Previous Page
To Previous Page IconTo Previous Page
Loading...
3
Horizontal Connections / Economizer
Vertical Connections / Economizer
C09001
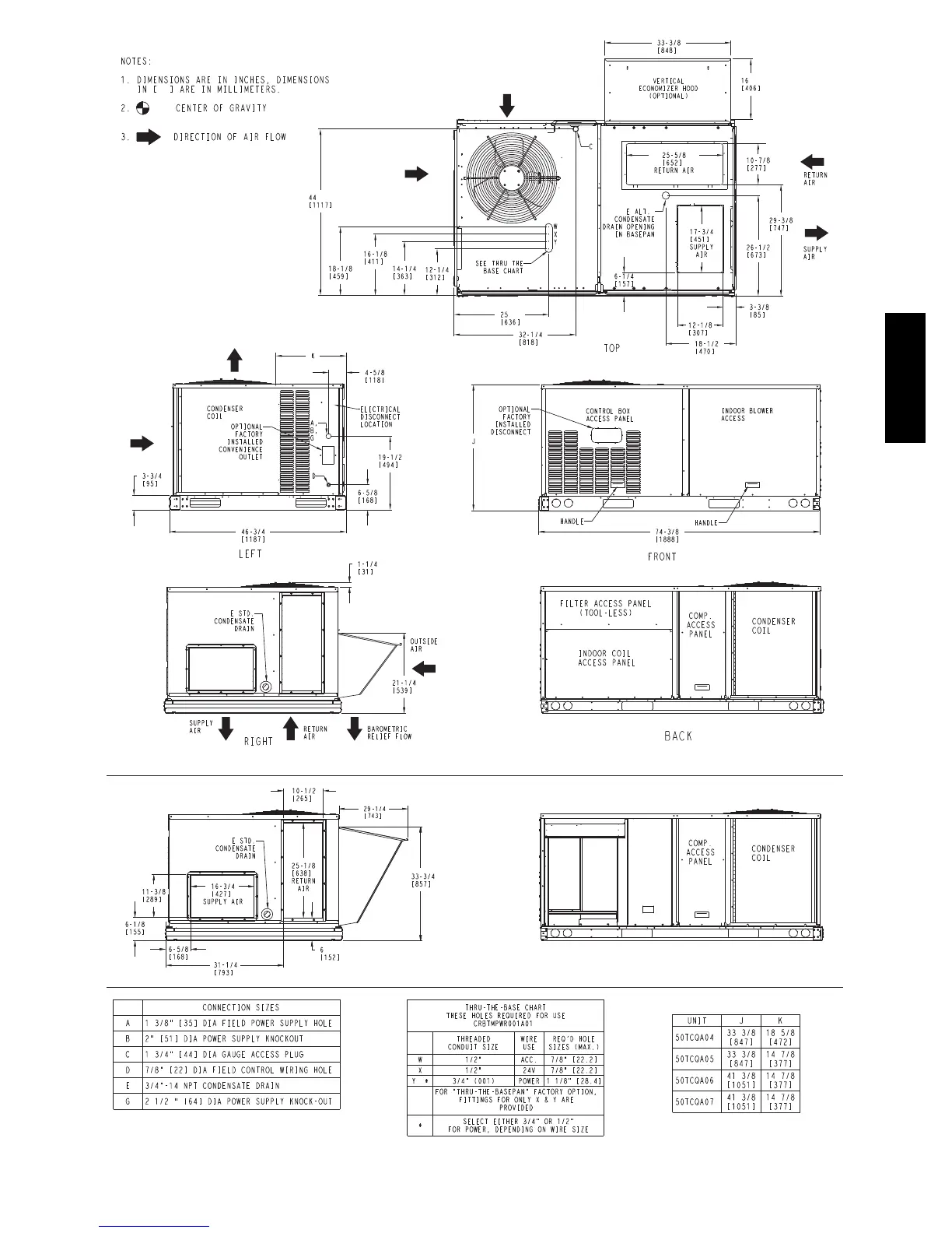
Fig. 1 -- Unit Dimensional Drawing 04 07 Size Units
50TCQA

Related product manuals