EasyManua.ls Logo

Case CX490C - Dimension - Medium-short Arm (LC)

Case CX490C
61 pages
Print Icon
To Next Page IconTo Next Page
To Next Page IconTo Next Page
To Previous Page IconTo Previous Page
To Previous Page IconTo Previous Page
Loading...
INTRODUCTION
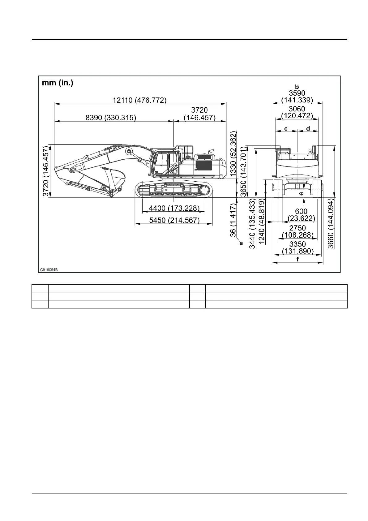
Medium-shortArm[3.13m(10.2690ft)]
NOTE:Numbersaresubjecttochangewithoutnoticeduetodesignchangeorotherreason.
Thediagramsgivevaluesthatincludetheshoelugheight“a”[36mm(1.417in)].
C918054B2
b.
Withcatwalk-option
e.
540mm(21.260in)
c.
1570mm(61.811in)
f.
3560mm(140.157in)
d.
1490mm(58.661in)
4809839920/01/2017
47

Related product manuals