EasyManua.ls Logo

CDVI PROMI E - Page 6

CDVI PROMI E
6 pages
Print Icon
To Previous Page IconTo Previous Page
To Previous Page IconTo Previous Page
Loading...
6
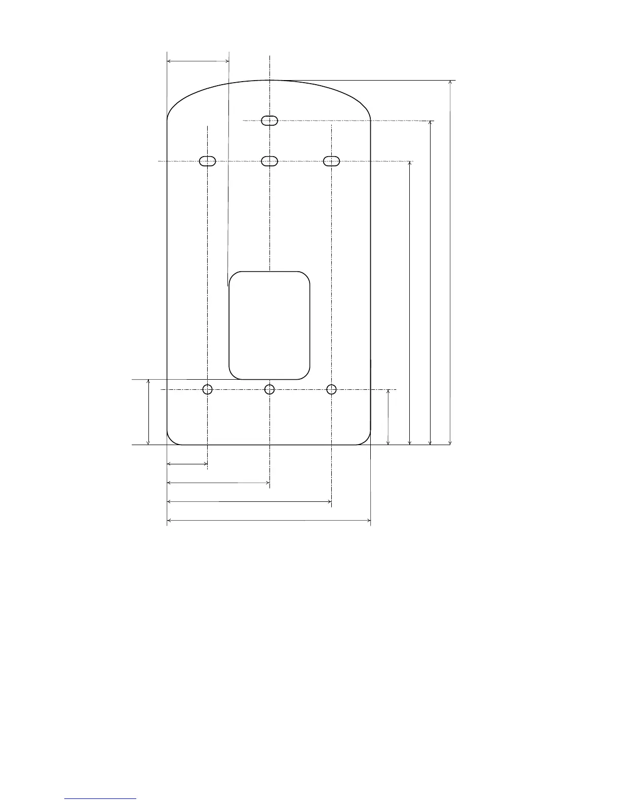
20.5
105
120
135
23
24
15
38
61
75.5
Wiring access
Area
30 x 40

Related product manuals