EasyManua.ls Logo

Cedes Safe2+ - Separated Controller Dimensions

Cedes Safe2+
24 pages
Print Icon
To Next Page IconTo Next Page
To Next Page IconTo Next Page
To Previous Page IconTo Previous Page
To Previous Page IconTo Previous Page
Loading...
Operation Manual Safe2+ / Safe4
© CEDES Safety & Automation AG / June 2008 www.cedes.com 17
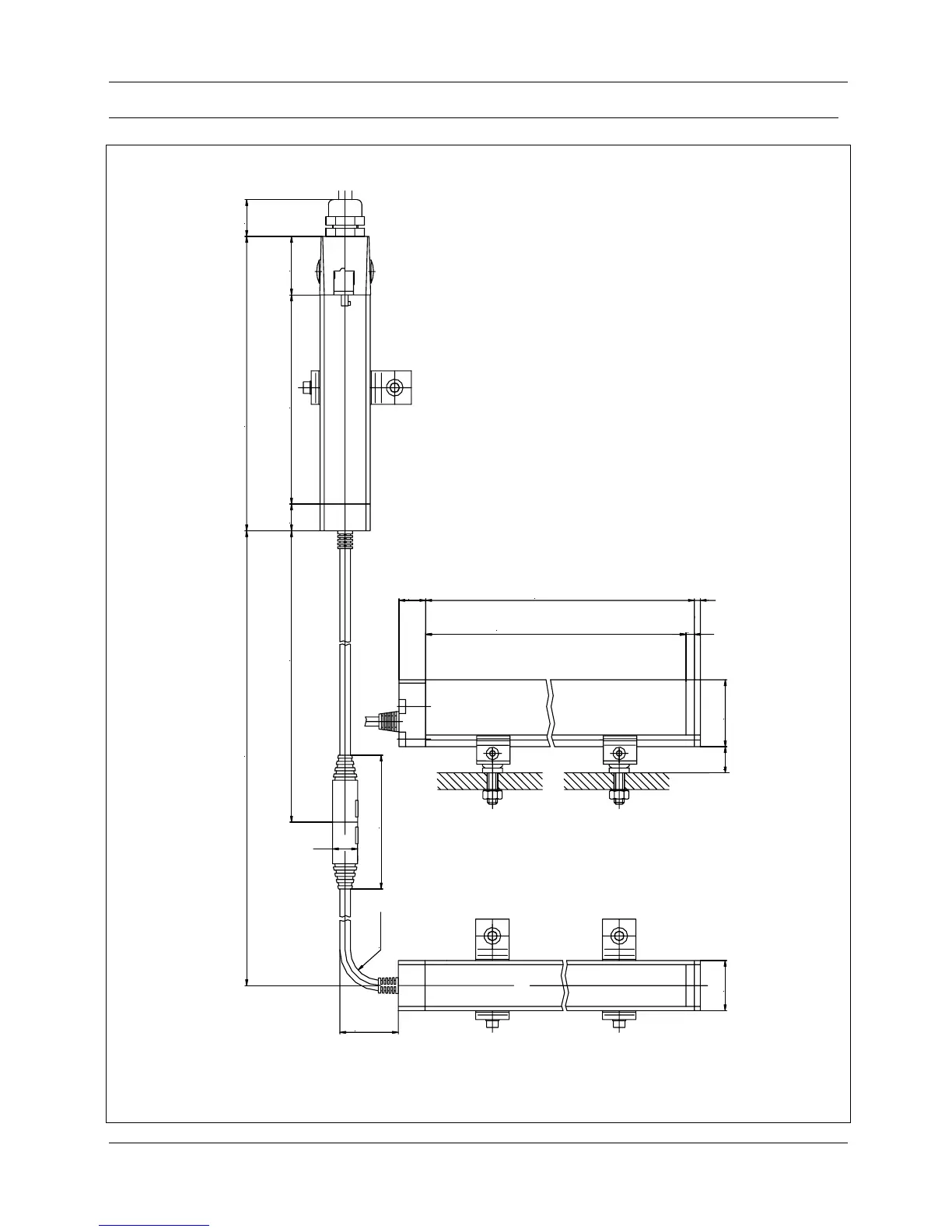
7.2. Systems with separated Controller
3
5
40
16
min. 35
R min. 17
30
ca. 250
80
150
ø15
C
ontroller ext. = 176 22
16 125 35
15.5
Profile length B
Length of Protective field
Figure 23: Dimensional drawing, cross section with Pin-out of connector for systems with separated controller (dimensions emitter = dimen-
sions receiver)

Related product manuals