EasyManua.ls Logo

Central Pneumatic 21 - Page 9

Central Pneumatic 21
20 pages
Print Icon
To Next Page IconTo Next Page
To Next Page IconTo Next Page
To Previous Page IconTo Previous Page
To Previous Page IconTo Previous Page
Loading...
Page 9For technical questions, please call 1-888-866-5797.ITEM 61454
SAFETYSETUPOPERATIONMAINTENANCE
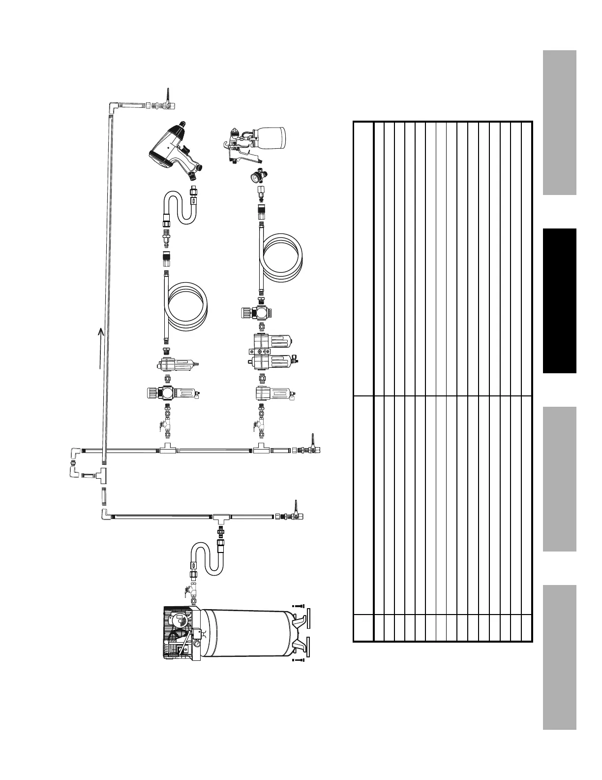
Figure H: Stationary Air Supply Setup
N
L
L O
M
C
C
Non-lubricated
Tools
Lubricated
Tools
H
I
I
J
J
K
H
F
G
E
Slope
F
F
B B
A
A
C
D
Description Function
A Vibration Pads For noise and vibration reduction
B Anchor Bolts Secures air compressor in place
C Ball Valve Isolates sections of system for maintenance
D Isolation Hose For vibration reduction
E Main Air Line - 3/4″ minimum recommended Distributes air to branch lines
F Ball Valve To drain moisture from system
G Branch Air Line -1/2″ minimum recommended Brings air to point of use
H Air Hose Connects air to tool
I Filter Prevents dirt and condensation from damaging tool or workpiece
J Regulator Adjusts air pressure to tool
K Lubricator (optional) For air tool lubrication
L Coupler and Plug Provides quick connection and release
M Leader Hose (optional) Increases coupler life
N Air Cleaner / Dryer (optional) Prevents water vapor from damaging workpiece
O Air Adjusting Valve (optional) For fine tuning airflow at tool

Related product manuals