EasyManua.ls Logo

CENTRAL RE Series - Page 7

Default Icon
46 pages
Print Icon
To Next Page IconTo Next Page
To Next Page IconTo Next Page
To Previous Page IconTo Previous Page
To Previous Page IconTo Previous Page
Loading...
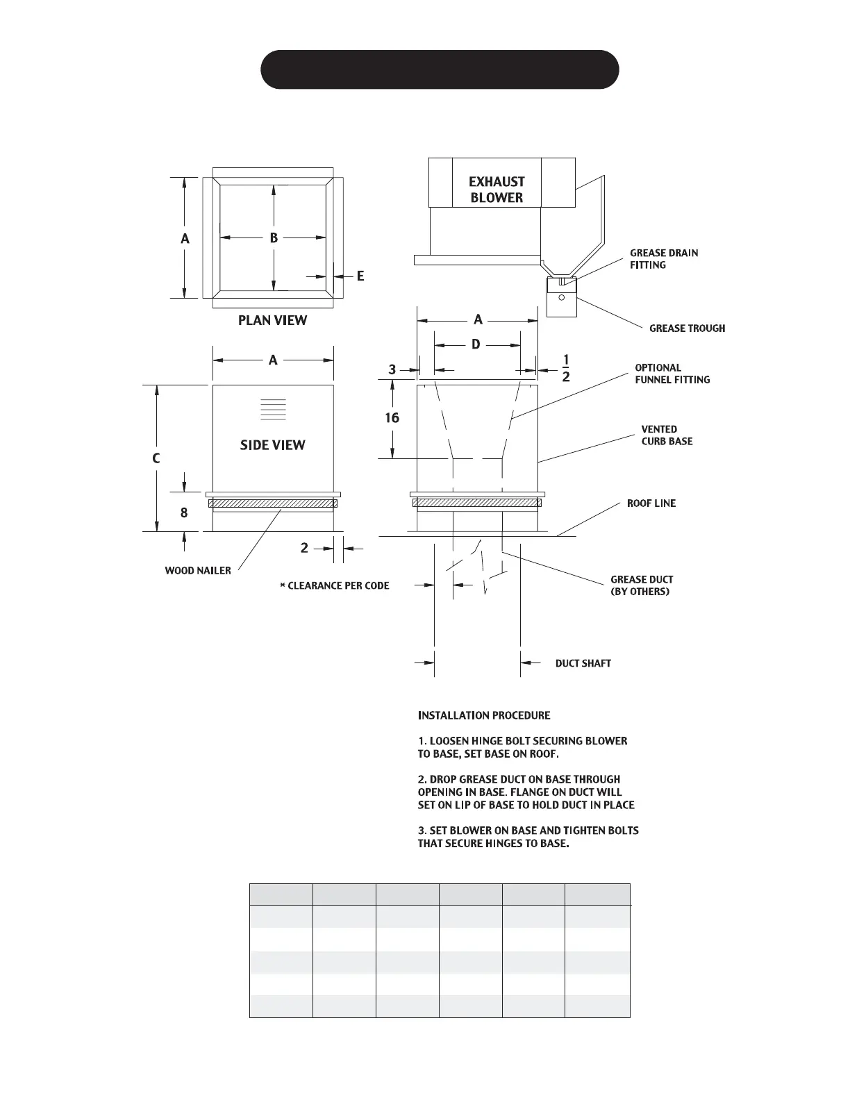
Central Blower Restaurant Exhaust Fan Catalog • Page 5
Restaurant Exhaust Fans
Models RE12, RE15, RE18, RE22 and RE24
Model A B C D E
RE-12 24 1/2 21 1/2 29 3/4 17 1/2 1 1/2
RE-15 24 1/2 21 1/2 29 3/4 17 1/2 1 1/2
RE-18 39 7/8 36 7/8 26 33 1 1/2
RE-22 39 7/8 36 7/8 26 33 1 1/2
RE-24 47 43 21 40 2