EasyManua.ls Logo

Chamberlain LJ8900W - Planning and Preparation

Chamberlain LJ8900W
64 pages
Print Icon
To Next Page IconTo Next Page
To Next Page IconTo Next Page
To Previous Page IconTo Previous Page
To Previous Page IconTo Previous Page
Loading...
3
Planning
Survey your area to see if any of the conditions below apply to your installation.
Depending on your requirements, additional materials may be required.
THIS DOOR OPERATOR IS COMPATIBLE WITH:
Doors that use a torsion bar and springs. The torsion bar must be 1" (2.5 cm)
diameter. NOT compatible with reverse wound drums.
4-6" (10-15 cm) drums, not to be used on tapered drums over 6" (15 cm).
High lift (up to 54" (137.2 cm) high) and standard lift sectional doors up to 14 ft.
(4.3 m) high.
Doors up to 18 ft. (5.5 m) wide.
Doors up to 180 sq. ft. (16.7 sq. m).
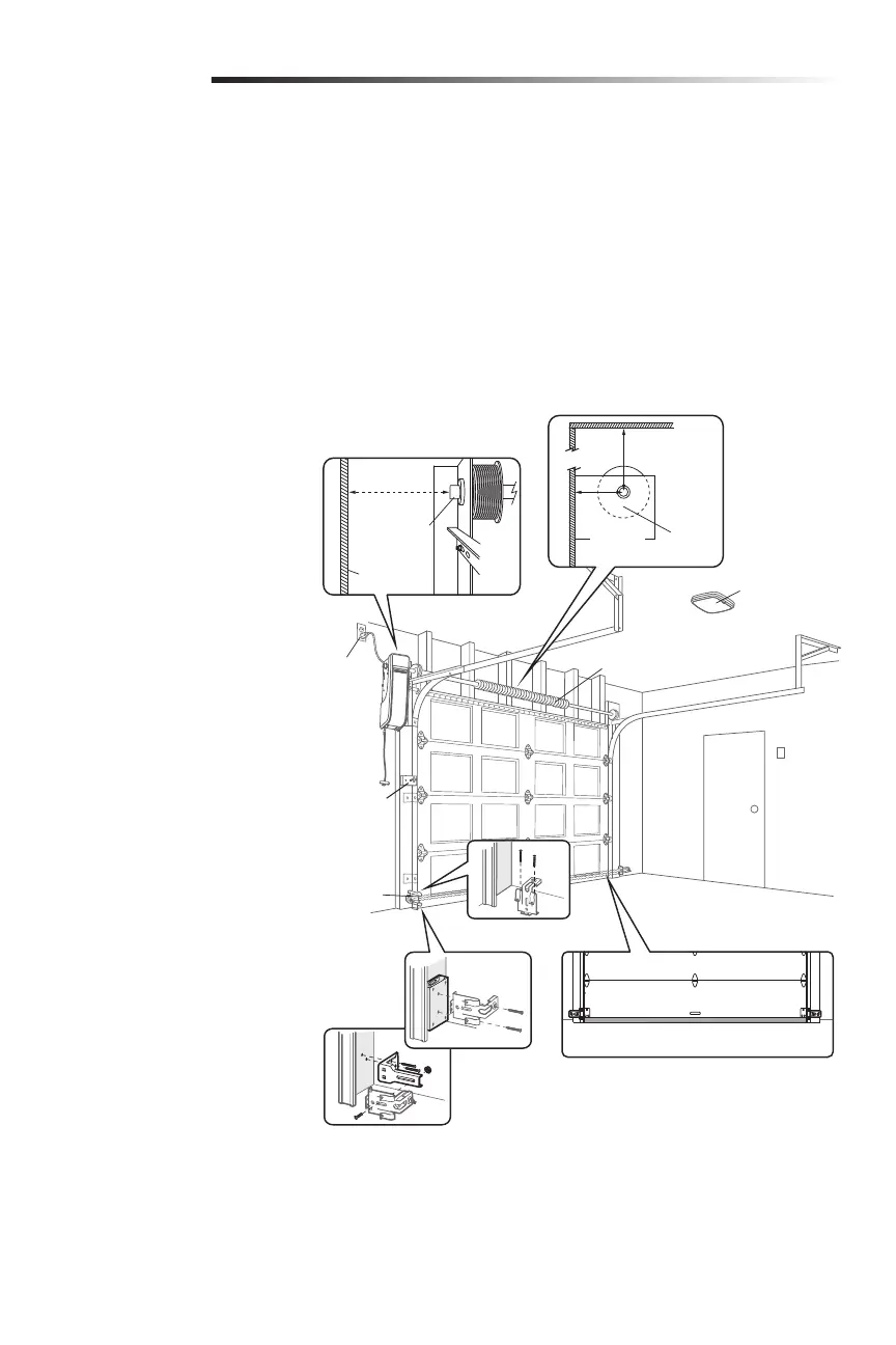
Review or inspect proposed installation area. The door operator can be installed on the left
or right side of door. Select the side that meets the requirements listed below.
a. Must have minimum of 2.5" (6.4 cm)
between the wall and the center of the
torsion bar.
b. Must have minimum of 3" (7.6 cm)
between the ceiling and the center of
torsion bar.
c. Must have minimum of 8.5" (21.6cm)
between the side wall (or obstruction)
and the end of torsion bar.
d. The torsion bar must extend at least
1.5" (3.81 cm) past the bearing.
This may vary depending on your
installation requirements.
e. An electric outlet is required within
6ft. (1.83 m) of the installation area.
If outlet does not exist, contact a
qualified electrician.
f. Depending upon building
construction, extension brackets or
wood blocks may be needed to install
safety reversing sensors and cable
tension monitor.
g. Alternate floor mounting of the
safety reversing sensors will require
hardware (not provided).
h. Check the seal on the bottom of the
door. Any gap between the floor and
the bottom of the door must not
exceed 1/4 inch (6 mm). Otherwise,
the safety reversal system may not
work properly.
Introduction
NOTE: Inspect the torsion bar while the
door is raised and lowered. It is important
that there is no noticeable movement up
and down or left and right. If the movement
is not corrected, the life of the door
operator will be greatly reduced.
a
b
h
c
d
e
f
g
Torsion
bar
2.5"
(6.4 cm)
3"
(7.6 cm)
Wall or
obstruction
Torsion bar
8.5"
(21.6cm)
Safety
reversing
sensor
myQ LED
Remote Light
(Not provided)
Automatic
door lock
(Not
provided)
Door spring

Table of Contents

Related product manuals