EasyManua.ls Logo

ChiQ CCD601NBS - Part Names and Locations

ChiQ CCD601NBS
16 pages
Print Icon
To Next Page IconTo Next Page
To Next Page IconTo Next Page
To Previous Page IconTo Previous Page
To Previous Page IconTo Previous Page
Loading...
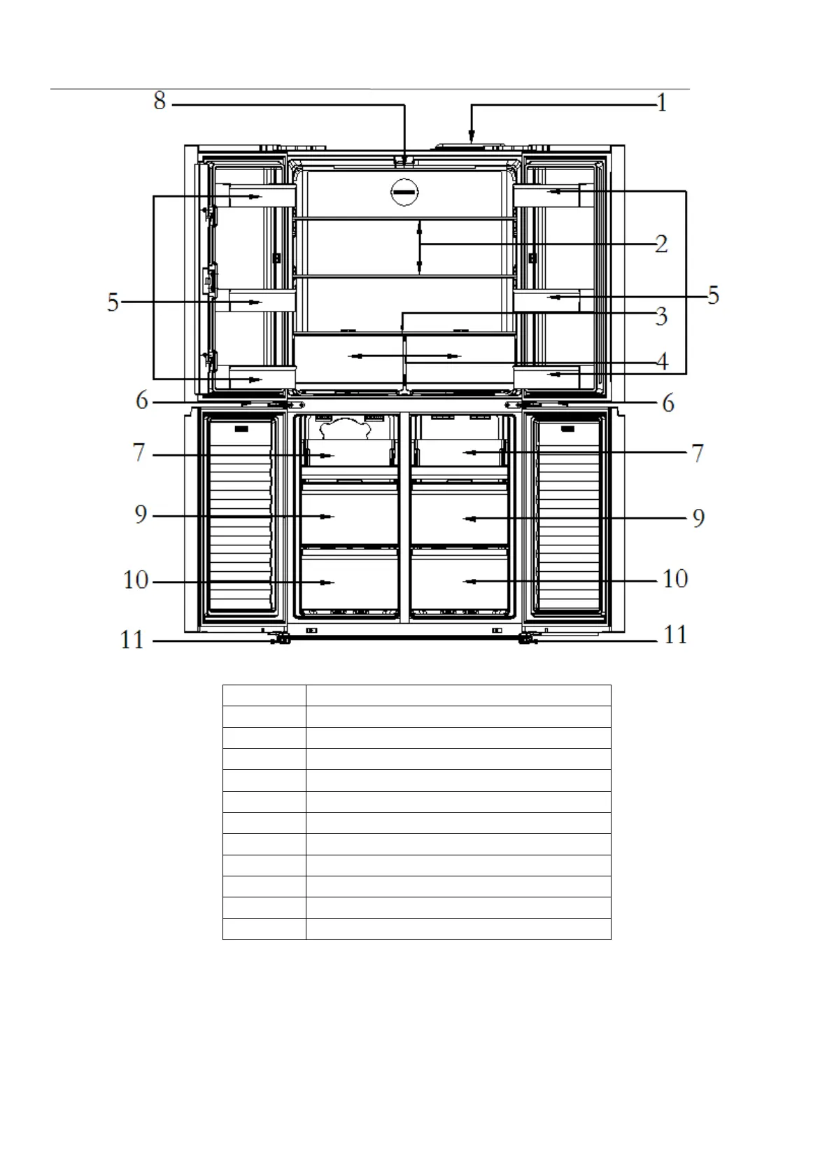
PART NAMES AND LOCATIONS
IN ACCESSORY BAG: USER MANUAL, WARRANTY
As the manufacturer holds the authority to redesign or modify its products without notice:
Any modifications or upgrades of our products will result in this refrigerator varying
slightly from this manual but the functionality will remain the same to that as set out
within this manual.
No.
Description
1
Control Panel
2
Fridge Glass Shelves
3
Crisper Drawer Cover
4
Crisper Drawers
5
Fridge Door Shelves
6
LED Light
7
Freezer Trays
8
LED Light
9
Freezer Drawers
10
Freezer Drawers
11
Adjustable Feet

Related product manuals