EasyManua.ls Logo

CISA MyEVO - 4 Errori E Malfunzionamenti

Default Icon
Print Icon
To Next Page IconTo Next Page
To Next Page IconTo Next Page
To Previous Page IconTo Previous Page
To Previous Page IconTo Previous Page
Loading...
IT
- 13 -
4. ERRORI E MALFUNZIONAMENTI
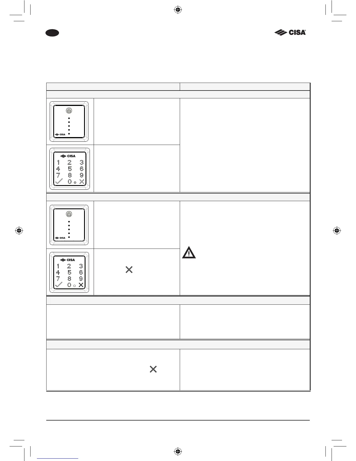
Tutti i led della pulsantiera interna devono lampeggiare simultaneamente solo nel caso di
segnalazione o errore (ad esempio batterie scariche o errore elettromeccanico).
Segnale Soluzione
Livello batteria basso
Pulsante:
tutti i led lampeggiano per 5
volte
Sostituire tutte le batterie x12
Batteria tipo AA 1.5V.
Tastiera:
led giallo lampeggia per 5 volte
con 5 avvisi sonori brevi
Anomalia meccanica
Pulsante:
tutti i led lampeggiano per 10
volte per 1 secondo
Un ciclo di apertura/chiusura della porta utilizzan-
do la chiave riporta al normale funzionamento
la serratura eliminando la condizione di errore.
L’utente potrebbe trovare resistenza nella
rotazione della chiave
Tastiera:
il led rosso
lampeggia per
10 volte con 10 avvisi sonori
lunghi
Apertura e chiusura in emergenza
In caso di malfunzionamento elettronico o in
mancanza di alimentazione elettrica è possibile
azionare la serratura manualmente.
1 Inserire la chiave meccanica nel cilindro delle
serratura.
2 Ruotare la chiave e azionare i catenacci per
aprire o chiudere la serratura.
Ripristino funzioni serratura
In caso di malfunzionamento elettronico segnalato
da lampeggio del pulsante interno (tutti i led per 10
volte) o della tastiera esterna (led rosso
per 10
volte), seguire la procedura indicata per ripristinare
il corretto funzionamento.
Effettuare un ciclo completo di apertura (com-
preso il richiamo dello scrocco) e chiusura della
porta utilizzando la chiave o il pomolo interno se
presente. Questa operazione riporta al normale
funzionamento la serratura eliminando la condizio-
ne di errore.

Other manuals for CISA MyEVO

Related product manuals