EasyManua.ls Logo

Citation Encore 560 - Engine Oil System Schematic

Citation Encore 560
446 pages
Print Icon
To Next Page IconTo Next Page
To Next Page IconTo Next Page
To Previous Page IconTo Previous Page
To Previous Page IconTo Previous Page
Loading...
SECTION II
AIRPLANE AND SYSTEMS
MODEL 560
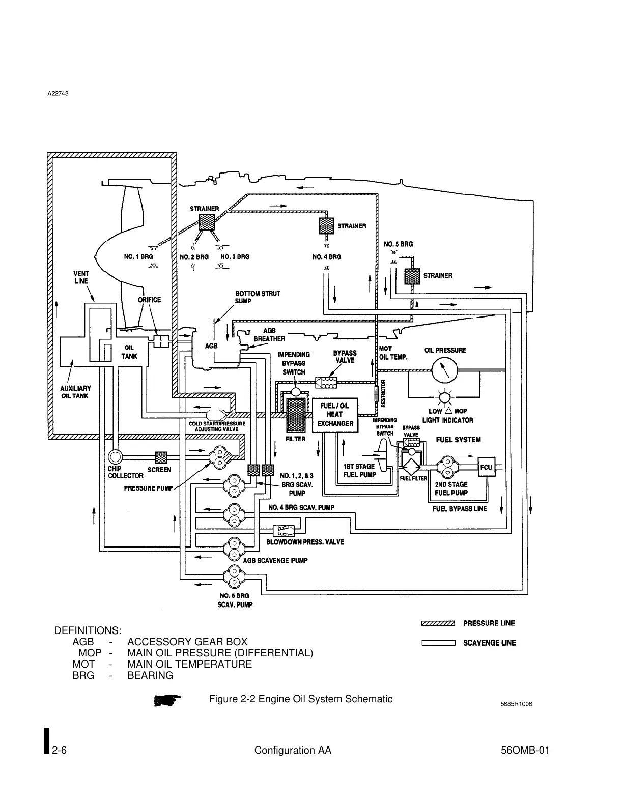
DEFINITIONS:
AGB - ACCESSORY GEAR BOX
MOP - MAIN OIL PRESSURE (DIFFERENTIAL)
MOT - MAIN OIL TEMPERATURE
BRG - BEARING
Figure 2-2 Engine Oil System Schematic
I
2-6 Configuration AA 56OMB-01

Table of Contents