EasyManua.ls Logo

Cleaver-Brooks Profire E Series - 2.3.1 Watertube Boiler Dimensions

Cleaver-Brooks Profire E Series
84 pages
Print Icon
To Next Page IconTo Next Page
To Next Page IconTo Next Page
To Previous Page IconTo Previous Page
To Previous Page IconTo Previous Page
Loading...
Installation
2-2
750-297
Profire E/LNE Series Manual
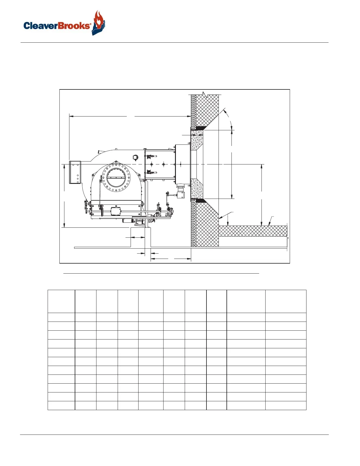
2.3 — Combustion Chamber Recommendations and E Refractory Dimensions
The combustion chamber dimensions should be proportioned to the heating load of the boiler.
2.3.1 - Watertube Boiler Dimensions
* Dimension is for oil applications. Dimension will be less for gas only applications.
Burner
Size A B C D E F G
Combustion
Chamber
Min. Width
Combustion
Chamber Min.
Length
84 10 19 19 31.5* 64 3.5 23 38 74
105 10 19 23 31.5* 64 3.5 23 46 84
126 10 19 24 31.5* 64 3.5 23 50 90
147 12 22 25 31.5* 64 3.5 23 55 100
168 12 27.5 27 37* 78 3.5 31 60 108
210 12 27.5 30 37* 78 3.5 31 70 120
252 15 31.5 30 37* 78 3.5 31 84 132
294 15 31.5 32 42* 87 3.5 33 84 144
336 18 34.6 34 42* 87 3.5 33 86 152
378 18 34.6 36 42* 87 3.5 33 92 160
420 18 34.6 38 42* 87 3.5 33 96 170
FIGURE 2-1. Combustion Chamber Dimensions (Watertube Boiler)
BLOCK INSULATION
45°
B
C (MIN)
A
C
L
BURNER
STANDARD
FIREBRICK
FLOOR
E
D
1-1/2" + A
G
F

Table of Contents

Related product manuals