EasyManua.ls Logo

Cleaver-Brooks Profire E Series - Page 8

Cleaver-Brooks Profire E Series
84 pages
Print Icon
To Next Page IconTo Next Page
To Next Page IconTo Next Page
To Previous Page IconTo Previous Page
To Previous Page IconTo Previous Page
Loading...
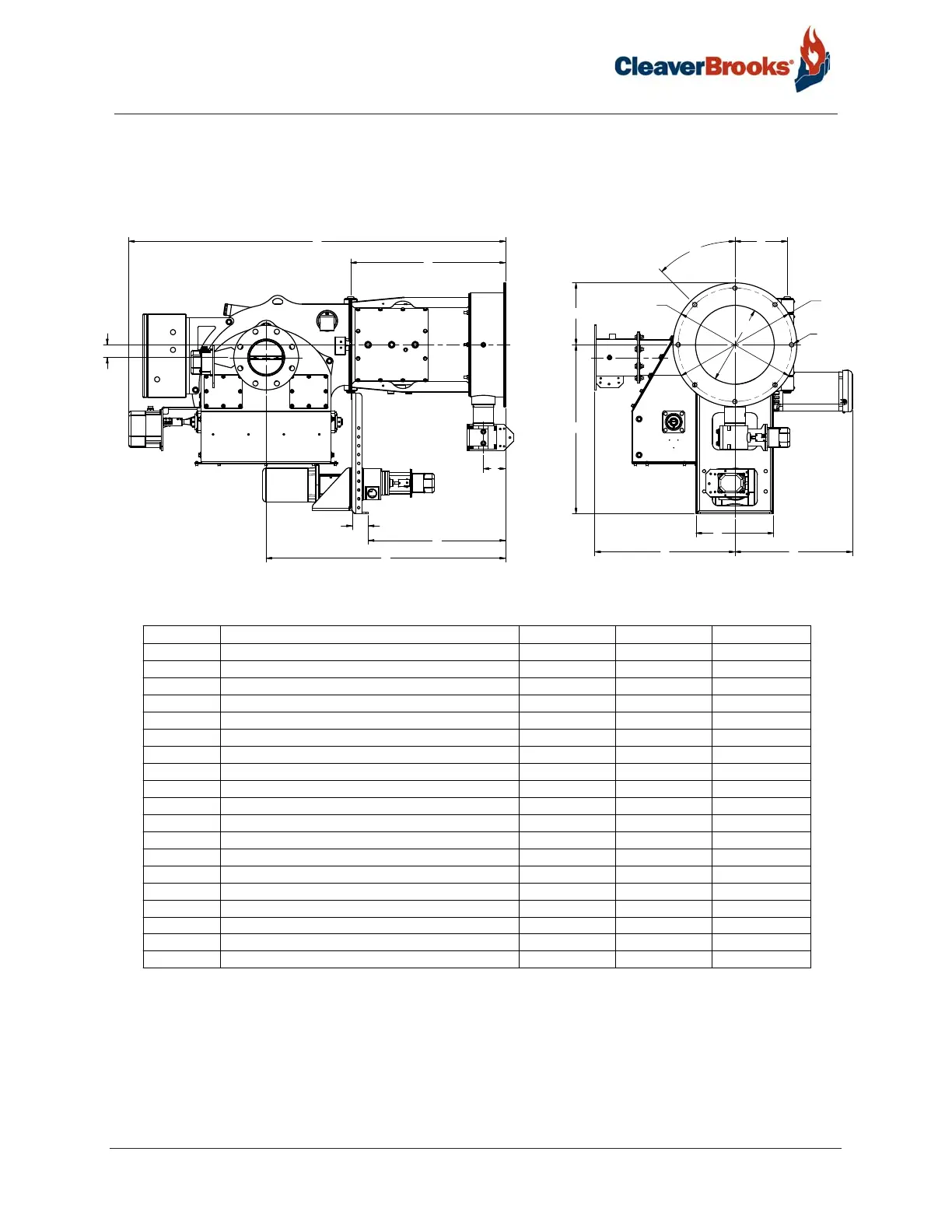
E Series Standard Dimensions - <30 PPM Low NOx Configuration
Accompanying dimensions are for layout purposes only
DIMENSION
DESCRIPTION
SIZE 1
SIZE 2 SIZE 3
A MOUNTING FLANGE TO PIN
26-1/4" 34-1/16" 36-7/16"
HTGNEL LLAREVOB
63-7/8" 77-7/16" 84-9/32"
HTGNEL TROPPUSC
2-3/4" 2-3/4"
3
D MOUNTING FLANGE TO SUPPORT
23-1/4" 31-1/2" 33-5/8"
E MOUNTING FLANGE TO GAS INLET
3-3/4"
5"
6-5/8"
F CENTER LINE TO HINGE
8-7/8" 10-3/16" 11-11/16"
ØG
OUTER DIAMETER
21"
26" 30"
ØH
INNER DIAMETER
13-3/8"
16" 19"
ØI
DIAMETER OF BOLT CIRCLE
19-1/4"
24"
28-1/4"
J
NUMBER OF MOUNTING HOLE 8 12 8
ØK
DIAMTER OF BOLT HOLE
3/4" 15/16" 3/4"
OFFSET OF BOLT CIRCLE FROM STARTING POINT
45 15 45
M CENTER LINE TO TOP
10-1/2"
13" 15"
N CENTER LINE TO BOTTOM
28-5/8" 36-1/2"
42"
HTDIW TROPPUSP
13-3/16" 13-3/16" 14-3/4"
R CENTER LINE TO RIGHT SIDE 20" 23"
26-1/2"
S CENTER LINE TO LEFT SIDE
17-1/2" 18-1/4" 23-7/16"
T CENTER LINE TO CENTER LINE OF FGR
2-3/16" 6-1/16" 6-13/32"
U
MOUNTING FLANGE TO CENTER LINE OF FGR
40-5/8" 50-1/8" 55-1/4"
A
B
T
C
D
E
F
ØG
ØH
ØI
JX ØK
M
N
P
R
S
T
U

Table of Contents

Related product manuals