EasyManua.ls Logo

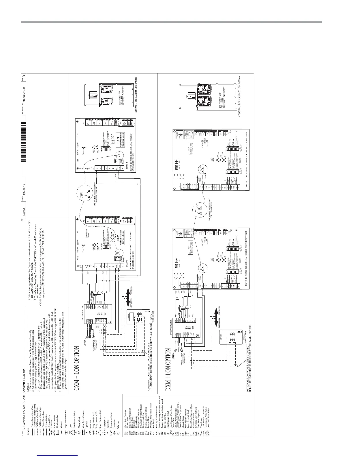
ClimateMaster TCV096 - Typical Wiring Diagram - TCH;V Units with LON

ClimateMaster TCV096
80 pages
Print Icon
To Next Page IconTo Next Page
To Next Page IconTo Next Page
To Previous Page IconTo Previous Page
To Previous Page IconTo Previous Page
Loading...
CLIMATEMASTER WATER-SOURCE HEAT PUMPS
Tranquility
®
Compact Belt Drive (TCH/V) Series
Rev.: July 25, 2017
48
ClimateMaster Water-Source Heat Pumps
Typical Wiring Diagram - TCH/V Units with LON

Table of Contents

Related product manuals