EasyManua.ls Logo

CLIMAVENETA HRAN 0121 - Dimensioned Drawings

CLIMAVENETA HRAN 0121
30 pages
Print Icon
To Next Page IconTo Next Page
To Next Page IconTo Next Page
To Previous Page IconTo Previous Page
To Previous Page IconTo Previous Page
Loading...
HRAT E - HRAT/HRAN
5English 09/02
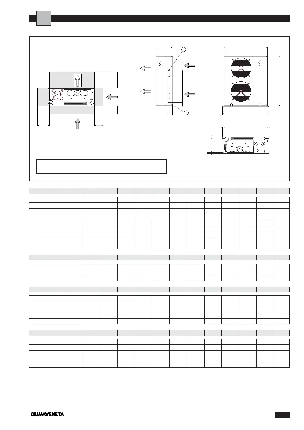
DIMENSIONED DRAWINGS
E
1
2
C
G
F
NM
ML
W4
W1
W3
W2
H==
I==
D
A
B
1- Hydraulic connections IN 0011÷0031 Ø3/4” - 0041÷0151 Ø1”1/4
2- Hydraulic connections OUT 0011÷0031 Ø3/4” - 0041÷0151 Ø1”1/4
A 970 970 970 970 1100 1100 1100 1450 1450 1450 1450 1450
B 874 874 1125 1125 1125 1125 1125 1200 1200 1700 1700 1700
C 370 370 370 370 420 420 420 550 550 550 550 550
D 1028 1028 1028 1028 1156 1156 1156 1507 1507 1507 1507 1507
E86868686117117 117 117 117 117 117 117
F96969696222222 222 245 245 245 245 245
G 719 719 719 719 790 790 790 815 815 815 815 815
H 328 328 328 328 378 378 378 497 497 497 497 497
I 998 998 998 998 1126 1126 1126 1477 1477 1477 1477 1477
Dimension 0011 0021 0025 0031 0041 0051 0061 0071 0091 0101 0121 0151
Functional distances 0011 0021 0025 0031 0041 0051 0061 0071 0091 0101 0121 0151
L 900 900 900 900 900 900 900 900 900 900 900 900
M 200 200 200 200 400 400 400 400 400 400 400 400
N 600 600 600 600 600 600 600 600 600 600 600 600
Weight distribution HRAT-HRAT E
0011 0021 0025 0031 0041 0051 0061 0071 0091 0101 0121 0151
W1 30 31 37 40 45 46 50 83 84 106 107 110
W2 15 15 19 20 22 23 25 42 42 53 54 56
W3 14 15 18 18 21 22 23 40 40 49 50 52
W4 27 29 36 37 43 44 47 80 82 102 104 107
TOT 86 90 110 115 131 135 145 245 248 310 315 325
Weight distribution HRAN
0011 0021 0025 0031 0041 0051 0061 0071 0091 0101 0121 0151
W1 32 33 41 42 48 50 52 87 88 111 112 -
W2 15 17 21 22 24 25 26 44 44 55 56 -
W3 15 16 19 20 23 23 25 41 42 52 53 -
W4 30 31 38 41 45 48 49 85 86 108 109 -
TOT 92 97 119 125 140 146 152 257 260 326 330 -
I

Related product manuals