EasyManua.ls Logo

CLIVET Standing-SL 2 - 6 Allegati; Schemi Elettrici Unità Interna (140 M)

CLIVET Standing-SL 2
Print Icon
To Next Page IconTo Next Page
To Next Page IconTo Next Page
To Previous Page IconTo Previous Page
To Previous Page IconTo Previous Page
Loading...
29
Allegati
6 ALLEGATI
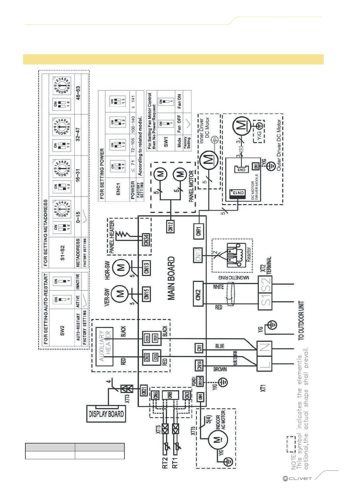
6.1 Schemi elettrici unità interna (140M)
SERIE GRANDEZZA
IS2-XY 140M

Related product manuals