EasyManua.ls Logo

CLIVET Standing-SL 2 - Page 61

CLIVET Standing-SL 2
Print Icon
To Next Page IconTo Next Page
To Next Page IconTo Next Page
To Previous Page IconTo Previous Page
To Previous Page IconTo Previous Page
Loading...
29
Attachments
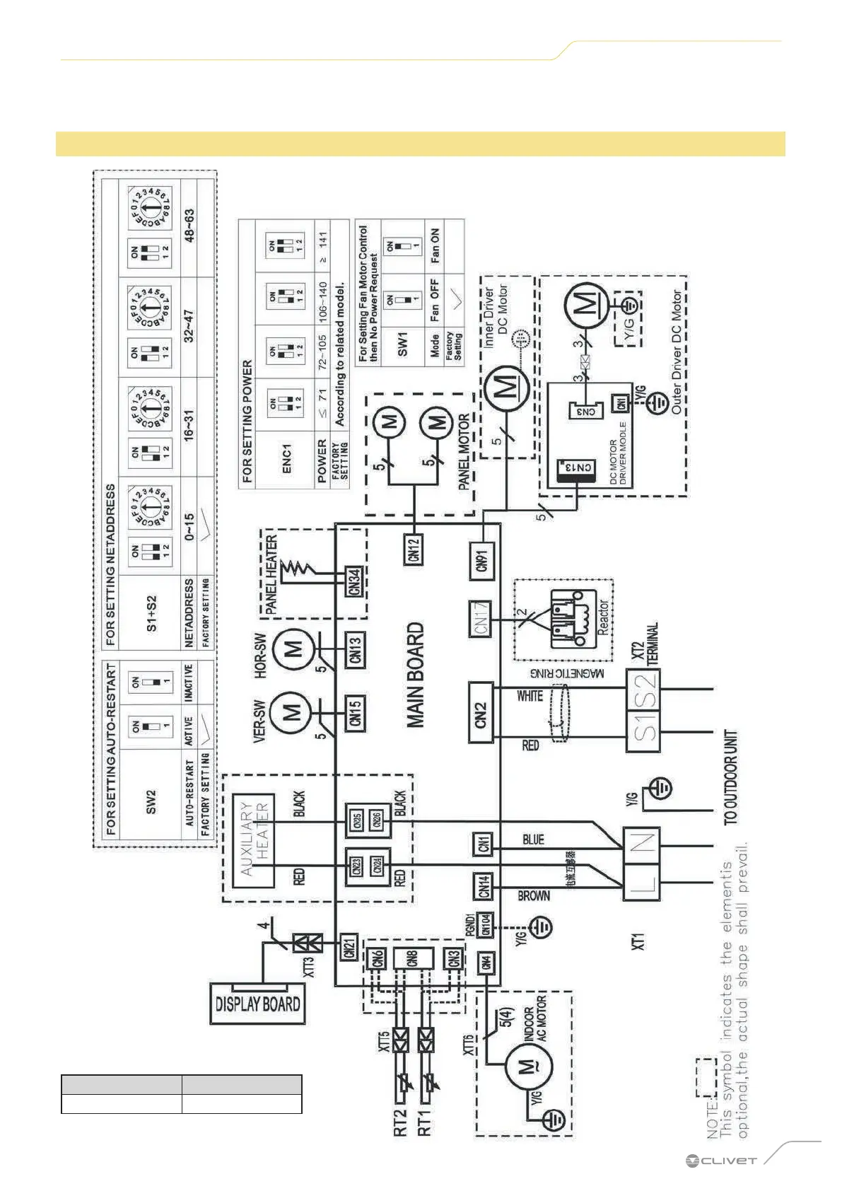
6 ATTACHMENTS
6.1 Indoor unit wiring diagrams (140M)
SERIES SIZE
IS2-XY 140M

Related product manuals