EasyManua.ls Logo

CLIVET WSAT-SC 65D Series - Page 22

CLIVET WSAT-SC 65D Series
50 pages
To Next Page IconTo Next Page
To Next Page IconTo Next Page
To Previous Page IconTo Previous Page
To Previous Page IconTo Previous Page
Loading...
M01W45H6-06
WSAT-SC
75C-180F
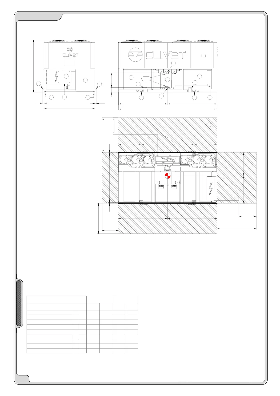
- WATER CONNECTIONS -
22
Sizes 165F-180F
7
4
4
3
3
1
OD
8
9
7
7
4
4
6
6
3 3
2
W1 W2
W4W3
"G"
14
5
2195
53
53
4250
2125 2125
2
0
0
6
3
0
985 2280 985
7
0
0
(
1
1
)
1
5
0
0
(
1
3
)
3
5
2
1
2
5
3
5
700
(10)
700
(11)
M N
O
P
1700
(13)
1
3
0
0
(
1
2
)
2
4
1
0
(1) INTERNAL EXCHANGER
(2) EXTERNAL EXCHANGER
(3) HOLE TO HANG UNIT
(4) LIFTING HOLES
(5) ELECTRICAL PANEL
(6) POWER INPUT
(7) SOUNDPROOFED CABIN
(8) INTERNAL EXCHANGER WATER INLET
(9) INTERNAL EXCHANGER WATER OUTLET
(10) MINIMUM DIMENSION FOR A SAFE PASSAGE.
(11) MINIMUM DIMENSION FOR A SAFE PASSAGE WHEN THE DOOR OF THE
ELECTRICAL SWITCHBOARD IS OPEN.
(12) MINIMUM DIMENSION FOR A PROPER AIR FLOW TO THE CONDENSER
COIL.
(13) MINIMUM DIMENSION ON THE ELECTRICAL SWITCHBOARD SIDE.
(14) CLEARANCE ACCESS RECOMMENDED
(G) BARYCENTRE
SC EN
SIZES 165F 180F 165F 180F
M
mm 2131 2163 2131 2163
N
mm 2119 2087 2119 2087
O
mm 1391 1415 1403 1415
P
mm 803 779 791 779
OD
mm 89 89 89 89
W1
kg 1182 1234 1221 1228
W2
kg 1194 1320 1234 1314
W3
kg 669 666 674 662
W4
kg 676 712 681 708
Weight referred to standard unit; according to the considered accessories unit weight can noticeably change.

Related product manuals