EasyManua.ls Logo

Cloud Z8II - Optional System Components; DM-I Dual Microphone Input Module; LM-1 Mic;line Input Module; RL-I Remote Music Level Control

Cloud Z8II
18 pages
Print Icon
To Next Page IconTo Next Page
To Next Page IconTo Next Page
To Previous Page IconTo Previous Page
To Previous Page IconTo Previous Page
Loading...
Z4II & Z8II: Installation and User Guide 5
Location of Jumper J1
For balanced microphones, connect the
cable screen to pin 1, the in-phase signal
(+) to pin 2 and the reverse phase signal
MICROPHONE
PHANTOM
POWER
MIC INPUT
SOCKET
HF
LF
GAIN
VR2VR3
VR1
C10
J2 R13
R14
C9
R
8
C
6
C7
R
1
1
SK1
C5
C2
R
7
R
2
C1
J1
ON
R
1
OFF
C3
C4
R3
R4
R5
R
9
T
R
2
T
R
1
IC1
R
1
5
T
L
0
7
2
(-) to pin 3. For unbalanced microphones,
connect a wire link from pin 1 (ground) to
pin 3 inside the XLR cable mounted plug;
use pin 1 as ground (cable screen) and pin
2 as hot. Do not use the phantom power
facility with unbalanced terminations.
When setting the jumper(s) please ensure
that you:
Remove the mains cable from the rear of the product before removing the top panel.
Only reassemble the unit using screws identical to the original parts.
Use a microphone that requires phantom power.
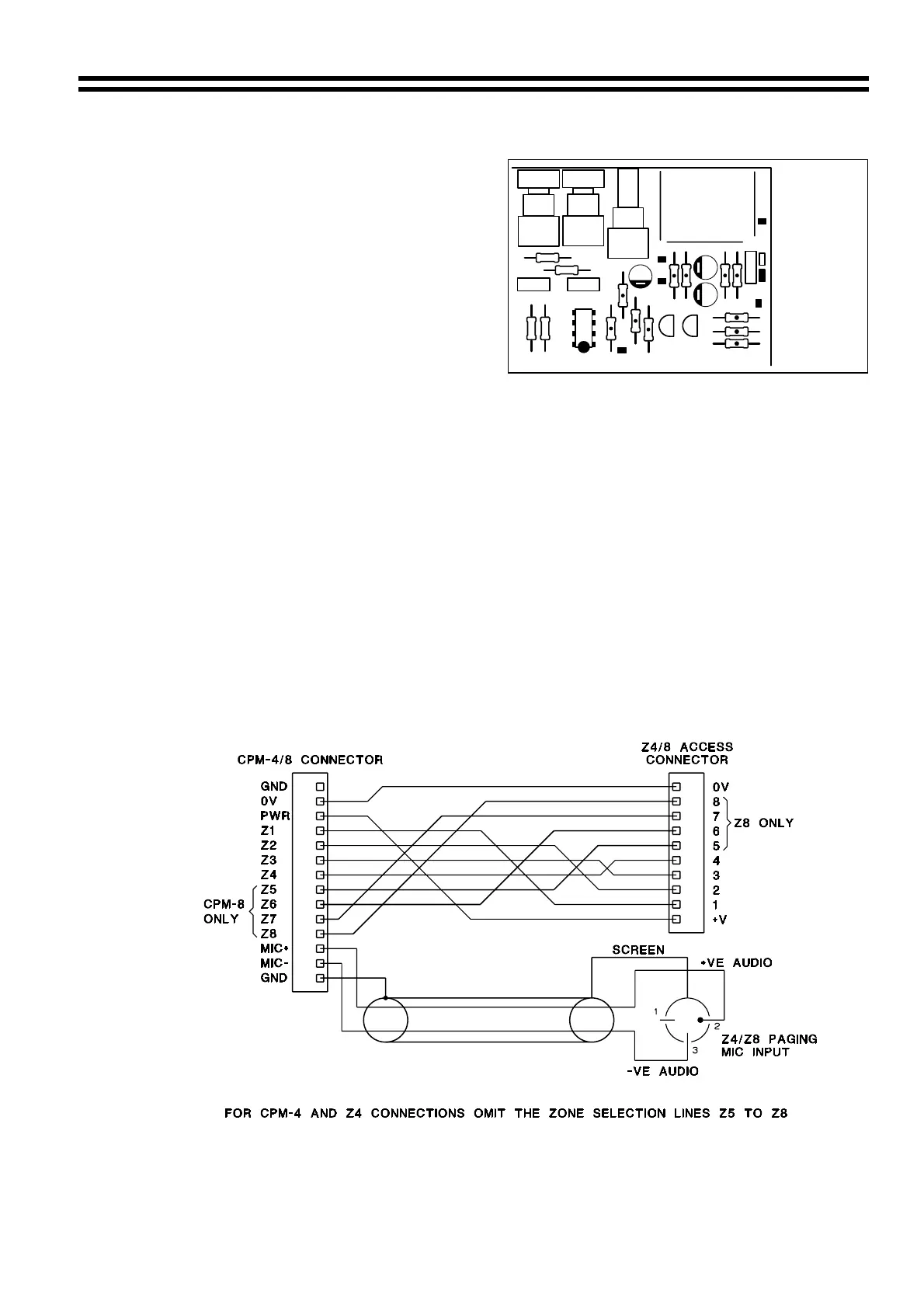
11 Paging Microphone
A dedicated paging microphone input is provided with adjacent gain control and equalisation
pre-sets. Once the input gain control has been set the paging mic level of each zone can be
optimised by adjusting the front panel mounted pre-set level controls. The Cloud CPM-4 &
CPM-8 zone paging microphones are available as an optional accessory, both microphones
feature zone selection switches allowing paging to all four or eight zones in any combination;
in addition a ‘call all’ button is provided for announcements to all zones. The zone select
buttons have push/on and push/off operation however, they can be internally configured to
automatically reset after an announcement has been made. A CPM microphone can be
internally configured to activate a pre-announcement chime, as well as an internal sounder
so that the chime is audible to the operator.
When using a single CPM paging microphone use the wiring diagram shown below: -
Wiring a CPM Microphone to a Z4 or Z8 Venue Mixer
Up to 5 CPM paging microphones can be used with a Z4 or Z8 Venue Mixer, when wiring
more than one CPM paging microphone either the Z4 or Z8 Venue Mixers please use the
diagram on the following page: -
30/05/03 V8

Other manuals for Cloud Z8II

Related product manuals