EasyManua.ls Logo

Control Techniques Unidrive M300 - Page 66

Control Techniques Unidrive M300
66 pages
Print Icon
To Previous Page IconTo Previous Page
To Previous Page IconTo Previous Page
Loading...
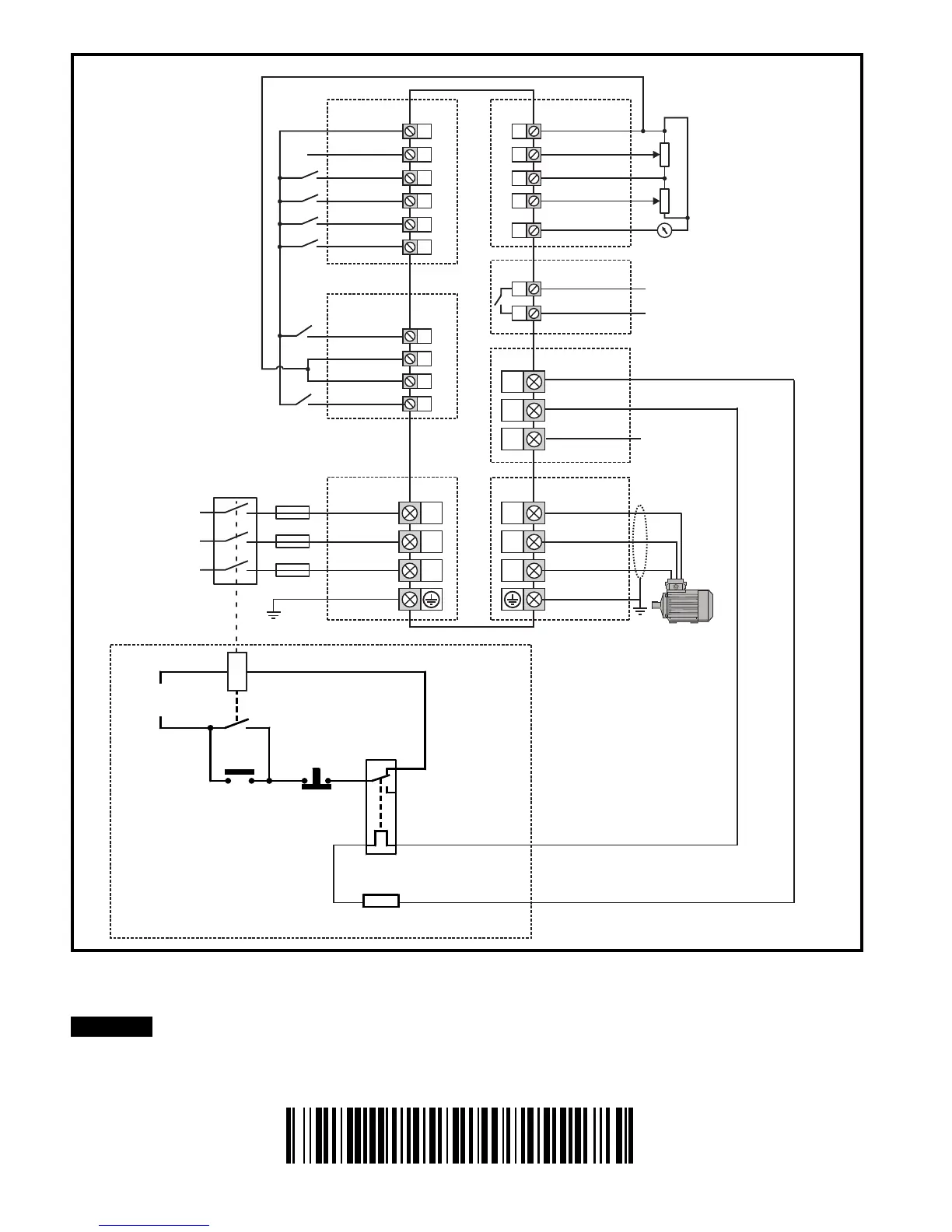
* Unidrive M300/HS30 uses Safe Torque Off (Drive enable) inputs and terminal 11 is unassigned.
** 250 Vac maximum (UL class 1).
0478-0039-07
The 0 V terminals on the Safe Torque Off are isolated from each other and the
0 V common. On the size 2 110 V drives or when connecting single phase to a dual rated 200 V
unit, the supply should be connected to L1 and L3.
9
10
11
12
32
User enable 2
/ STO input 2
0 V
31
STO2
13
14
Digital I/O
L1
L2
L3
1 ph/3 ph
AC power
supply
U
BR
+
_
V
W
41
42
Drive ok
Relay**
AC supply
DC bus/Brake
Motor
34
STO1
33
0 V
STO1
STO2
User enable 1
/ STO input 1
Safe Torque
Off
Zero frequency
Run forward
Run reverse
Analog input 1/
Analog input 2 select
Digital Input 2
24 V user
Digital I/O1
Digital input 3
Digital input 4
Digital input 5
1
2
0 V
Analog I/O
Analog input 1+
7
Analog output 1
4
10 V user
5
Analog input 2
Frequency
reference 1
Frequency
reference 2
Frequency output
Stop
Start
/
Reset
Thermal
protection
device
Braking resistor
Main contactor
power supply
Optional
Quick start setup using
default parameter settings
Unassigned
*
NOTE

Other manuals for Control Techniques Unidrive M300

Related product manuals