EasyManua.ls Logo

Cooper VR Series - Actuator Mechanism and Electrical Components; Electrical Component Troubleshooting

Default Icon
28 pages
Print Icon
To Next Page IconTo Next Page
To Next Page IconTo Next Page
To Previous Page IconTo Previous Page
To Previous Page IconTo Previous Page
Loading...
S260-20-9
13
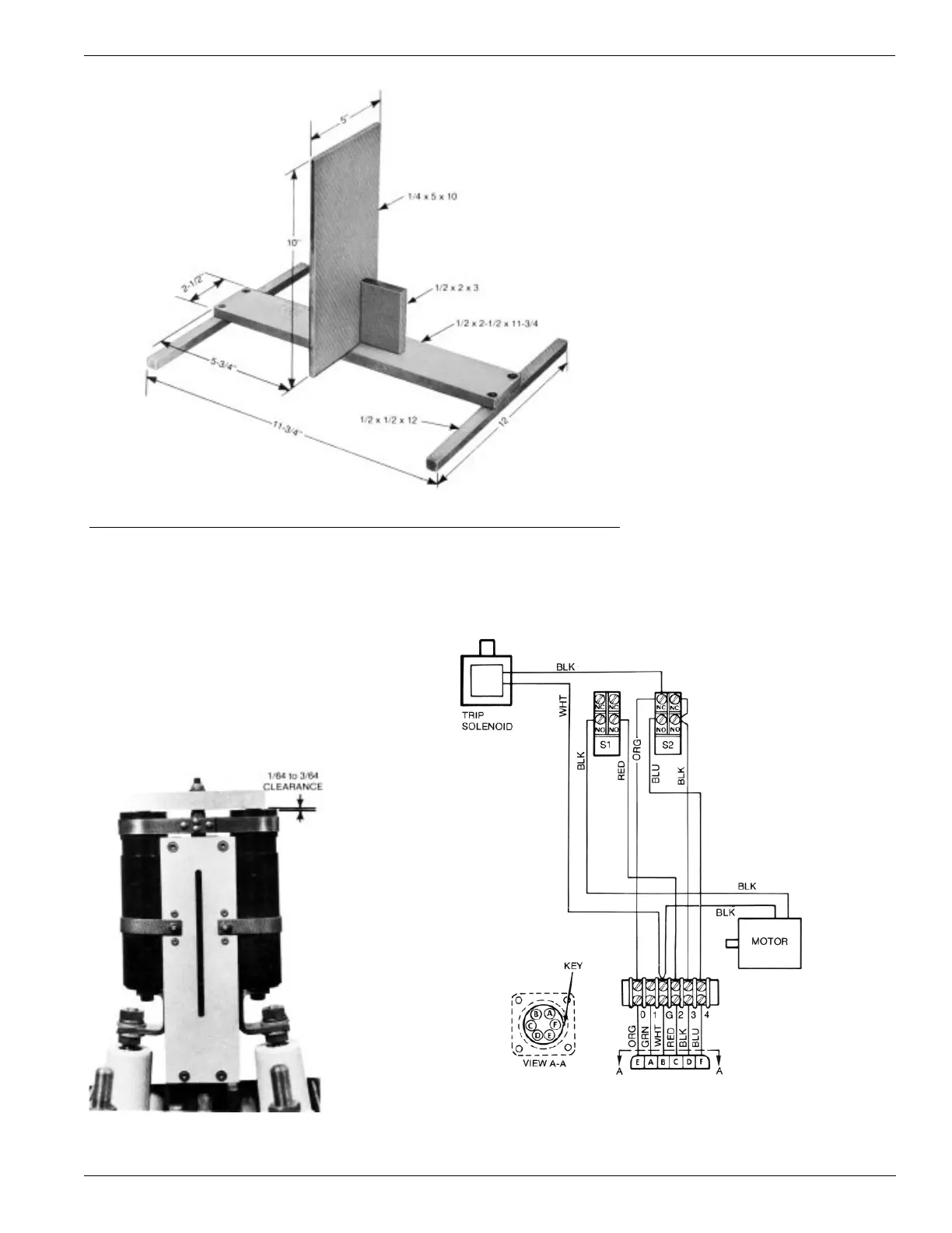
Figure 31.
Typical “sailboat” fixture for aligning contact housing.
Figure 32.
Type VLR switch contact engage-
ment.
Figure 33.
Connection diagram for standard operator.
rected by twisting the moving
contact yoke about the contact
rod. The link at the end of the
rod will permit enough twist to
obtain the adjustment required.
F. To confirm proper contact
engagement, crank the mecha-
nism to the fully closed position.
Check clearance between the
movable contact yoke and the
top of the contact tubes as
shown in Figure 32.Vary
the number of washers above
and below the yoke assembly to
obtain the proper clearance.
G. Manually trip open the switch and
reattach the closing spring.
8. ManualIy operate the switch a few
times to observe contact alignment
and clearances to verify that all parts
have been properly secured.
Actuator Mechanism
Normally, little maintenance is required
on the actuator mechanism. However,
periodic checks should be made to
assure trouble-free operation.
ELECTRICAL COMPONENTS
If the switch does not operate electrical-
ly but can be manually opened and
closed, check the electrical compo-
nents.
1. Make a continuity check for broken or
loose wiring.
2. Manually operate the miniature con-
trol switches and check contact
operation.
3. Apply rated operating voltage to the
motor and solenoids to verify their
operation.
Replace any components or wiring
found defective. The connection dia-
gram for the standard operator is shown
in Figure 33; and for the quick-close
operator in Figure 34.

Related product manuals