EasyManua.ls Logo

Corken 491 - Page 54

Default Icon
100 pages
Print Icon
To Next Page IconTo Next Page
To Next Page IconTo Next Page
To Previous Page IconTo Previous Page
To Previous Page IconTo Previous Page
Loading...
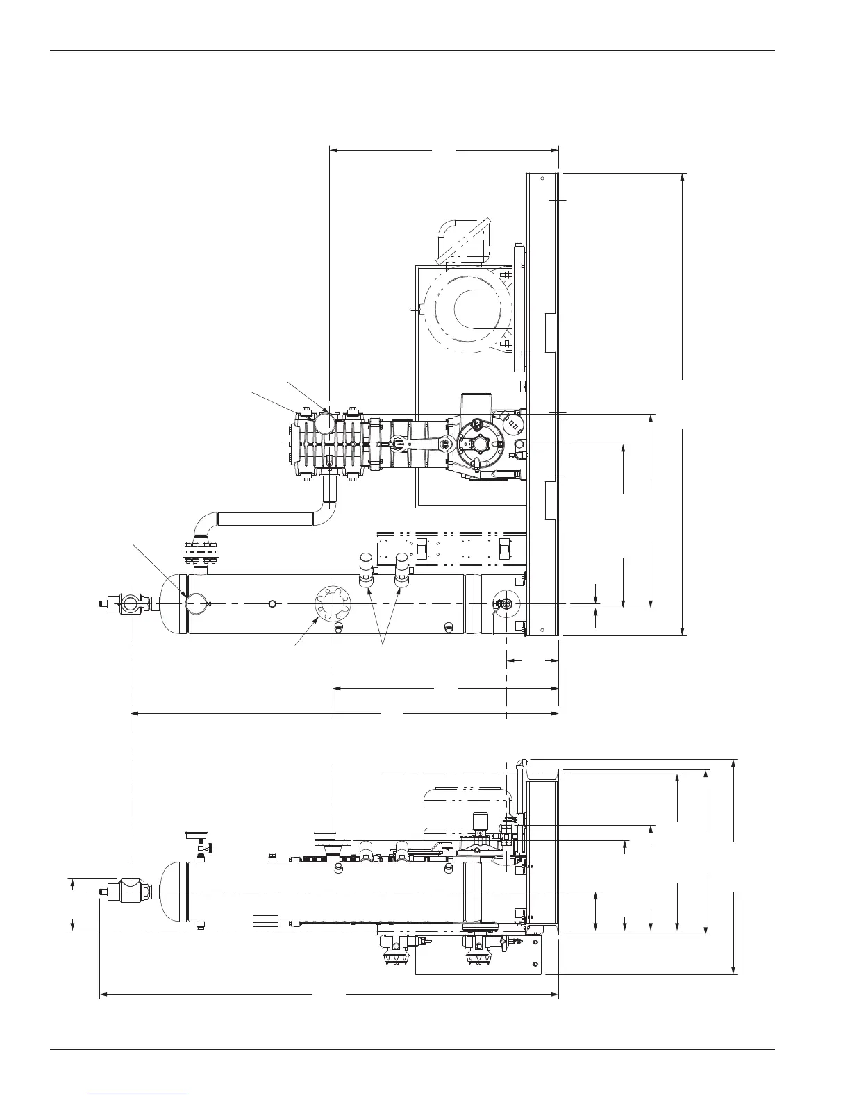
All dimensions are in inches (millimeters).
Appendix DOutline Dimensions
84 (2,134)
overall
35-3/16 (894)
Outlet:
2" weld ange
Inlet:
2" Class 300
RF ange
Discharge
pressure
gauge
Suction
pressure
gauge
Liquid
level
switches
3/4
(19)
29-3/4 (756)
9-1/2
(241)
41
(1,041)
77-3/4
(1,975)
39 (991)
overall
30 (762)
28-1/2 (724)
19-3/16 (487)
16-7/16 (418)
7-1/16
(179)
83-3/8
(2,118)
overall
41-5/8
(1,057)
9-7/16
(240)
Model D891 with 107B Mounting
54

Table of Contents

Related product manuals