EasyManua.ls Logo

Crossfire 150 - California Emissions

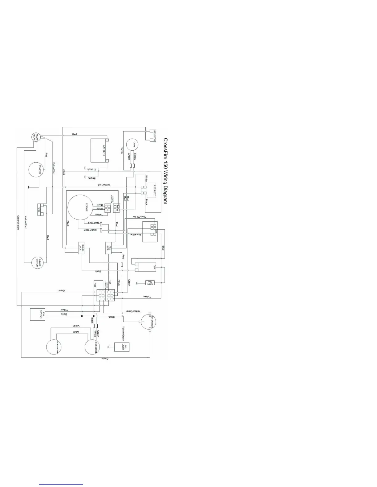
Crossfire 150
31 pages
Print Icon
To Next Page IconTo Next Page
To Next Page IconTo Next Page
To Previous Page IconTo Previous Page
To Previous Page IconTo Previous Page
Loading...
California Emissions Warranty
Your Warranty Rights And Obligations
The California Air Resources Board and Tomberlin Product Group (TPG). are pleased to
explain the emission control system warranty on your 2005 small off-road engine.
In California, new small off-road engines must be designed, built and equipped to meet the
State’s stringent anti-smog standards. TPG must warrant the emission control system on
your small off-road engine for the periods of time listed below provided there has been no
abuse, neglect or improper maintenance of your small off-road engine.
Your emission control system may include parts such as the carburetor or fuel-injection
system, the ignition system, and catalytic converter. Also included may be hoses, belts,
connectors and other emission-related assemblies. Where a warrantable condition exists,
TPG will repair your small off-road engine at no cost to you including diagnosis, parts and
labor.
Manufacturer’s Warranty Coverage:
The 1995 and later small off-road engines are warranted for two years. If any emission
related part on your engine is defective, the part will be repaired or replaced by TPG.
Owner’s Warranty Responsibilities:
- As the small off-road engine owner, you are responsible for the performance of the
required maintenance listed in your owner’s manual. TPG recommends that you retain
all receipts covering maintenance on your small off-road engine, but TPG cannot deny
warranty solely for the lack of receipts or for your failure to ensure the performance of all
scheduled maintenance.
- As the small off-road engine owner, you should however be aware that TPG may deny you
warranty coverage if your small off-road engine or a part has failed due to abuse, neglect,
improper maintenance or unapproved modifications.
- You are responsible for presenting your small off-road engine to a TPG distribution center
as soon as a problem exists. The warranty repairs should be completed in a reasonable
amount of time, not to exceed 30 days.
If you have any questions regarding your warranty rights and responsibilities, you should
contact a customer service representative at 1-877-855-0196.
-Warranty Parts List
Carburetor, Air Cleaner Element, Intake Manifold, Spark Plug: Ignition Coil & Magneto
Assembly, Hoses, Connectors and Assemblies
Defects Warranty Requirements for 1995 and Later Small Off-Road Engines.
(a) Applicability. This section applies to 1995 and later small off-road engines. The warranty
period begins on the date the engine or equipment is delivered to an ultimate purchaser.
(b) General Emissions Warranty Coverage. The manufacturer of each small off-road engine
must warrant to the ultimate purchaser and each subsequent purchaser that the engine is:
(1) Designed, built, and equipped so as to conform with all applicable regulations adopted
by the Air Resources Board pursuant to its authority in Chapters 1 and 2, Part 5, Division 26
of the Health and Safety Code; and
(2) Free from defects in materials and workmanship that cause the failure of a warranted
part to be identical in all material respects to the part as described in the engine
manufacturer’s application for certification for a period of two years.
47 48