EasyManua.ls Logo

CROSSRC EMOX2 - Electronic Wiring Diagram; Component Wiring Connections

Default Icon
54 pages
Print Icon
To Next Page IconTo Next Page
To Next Page IconTo Next Page
To Previous Page IconTo Previous Page
To Previous Page IconTo Previous Page
Loading...
41
BAG(Y)
42
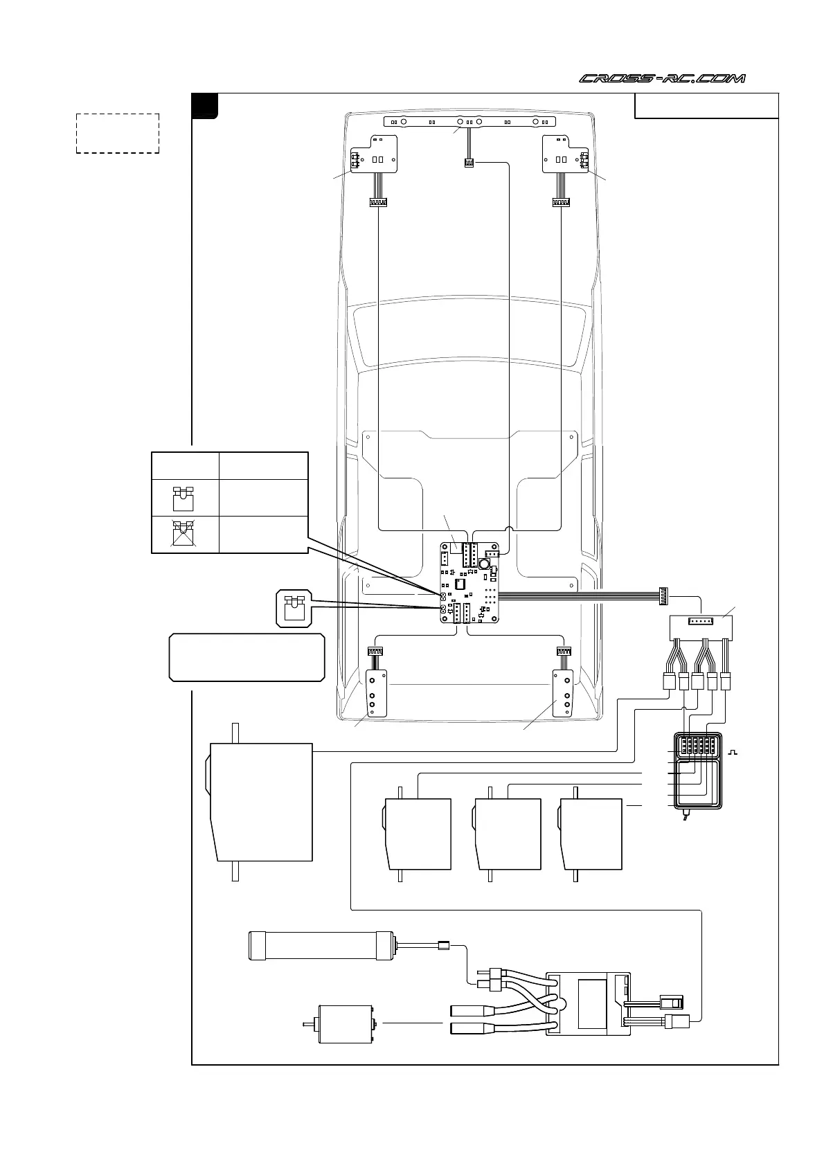
EMOX2
Electronics
speed control
ON/OFF
Switch
CH2
(Not included)
Battery
(Not included)
Motor
CH1
Steering
(Not included)
CH6
Shift
(Not included)
CH3
(Not included)
servo
servo
Front
diffrerntial lock
servo
CH4
(Not included)
Rear
diffrerntial lock
servo
ESC
87166
87164
87162
Bottom
CH1
CH2
CH3
CH4
CH5
CH6
-
+
Jumper
PLease plug short circuit
cap if vehicle go ahead but
brake lamps turn on.
87163
87165
87167
87169
Jumper
Mode
F/B/R
F/B

Related product manuals