EasyManua.ls Logo

Crown CTs 2000 - Page 165

Crown CTs 2000
167 pages
Print Icon
To Next Page IconTo Next Page
To Next Page IconTo Next Page
To Previous Page IconTo Previous Page
To Previous Page IconTo Previous Page
Loading...
WARNING
Property damage, serious injury, or death could occur if an
accumulation of water, snow, dust, etc. resides in the speaker
projector, severely reducing or preventing operation of this
device. Mount the unit so speaker projector is pointed
horizontally or slightly downward.
a. Remove the two 1/2-13 hex head bolts, flat washers
and lockwashers that secure mounting bracket to
unit.
b. Select mounting location.
WARNING
Property damage, serious injury, or death could occur if any
objects are in front of speaker, severely reducing optimum
sound distribution. For maximum effectiveness, ensure that
the front of the speaker is clear of obstructions.
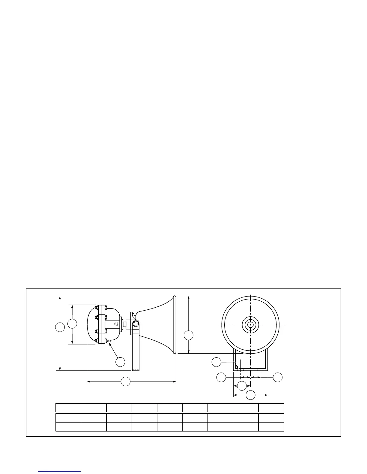
c. Using the mounting bracket as a template, scribe
drill position marks on the mounting surface. See
figure 1 for mounting hole locations and dimensions.
CAUTION
Before drilling holes in any surface, be sure both sides of
surface are clear of anything that could be damaged.
d. Drill holes at the previously scribed drill position
marks to accommodate 1/2" diameter screws.
e. Secure bracket to mounting surface with 1/2"
diameter screws appropriate for the type of
mounting surface material.
f. Remove eight 5/16-18 x 1-3/4" hex head bolts,
lockwashers and hex nuts that secure cover to
housing and carefully lift off cover.
WARNING
Property damage, serious injury, or death could occur if the
machined sealing surfaces are damaged on this product. To
maintain the effectiveness of the explosion-proof enclosure,
be careful to avoid damaging the machined sealing
surfaces of cover and housing.
g.Reattach unit to its mounting bracket with two 1/2-
13 hex head bolts, flat washers and lockwashers
previously removed. Position speaker so as to obtain
desired sound coverage then tighten these bolts
securely.
h.Before reinstalling the housing cover, read paragraph
d in section 3, Electrical Connections, and make the
necessary connections.
3. Electrical Connections.
DANGER
To avoid electrical shock, do not connect wires when
circuits are energized.
National Electrical Code, as well as local codes, must
be followed during installation of these models. All
electrical wiring must be routed through conduit and
fittings approved for explosion-proof installations.
The use of metal conduit and fittings is required to
provide grounding of the enclosure.
WARNING
Property damage, serious injury, or death could occur if
suitable barriers are not provided for explosive gases and
other atmospheres. To reduce the possibility of explosion
when this unit is used in Class I, Group B atmospheres, the
conduit MUST have a sealing fitting within 18-inches of the
enclosure. Be sure to refer to the National Electrical Code
or the authorities having jurisdiction in your area.
A B C D E F G H I
20.75 in. 18.56 in. 8.312 in. 0.500 in. 16.375 in. 8.875 in. 4.500 in. 2.500 in. 0.531 in.
52.7 cm. 47.1 cm. 21.1 cm. 12 mm. 41.6 cm. 22.5 cm. 11.4 cm. 6.35 cm. 13 mm.
290A3831-01
B
C
D
A
E
F
G
I
H H
DIA.
3 HOLES
PIPE
THREAD
Figure 1. Model AM302X Speaker Dimensions.

Related product manuals