EasyManua.ls Logo

Crown EL - EP Series Service Connections and Specifications; EP Model Dimensions and Electrical Data; EP Model Specifications

Crown EL
28 pages
Print Icon
To Next Page IconTo Next Page
To Next Page IconTo Next Page
To Previous Page IconTo Previous Page
To Previous Page IconTo Previous Page
Loading...
INSTALLATION & OPERATION MANUAL 10068 REV 7 (05/21)
PAGE
5
OF28

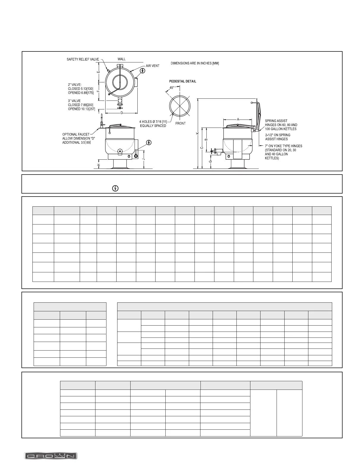
DIMENSIONS
SPECIFICATIONS
ELECTRICAL CHARACTERISTIC
SERVICE CONNECTIONS

    
EP-20 12 20 Gallon 76 Liter 196 lbs. [89 kg]
SIDES

3” [ 76 mm]
3” [ 76 mm]
EP-25 12 25 Gallon 95 Liter 200 lbs. [91 kg]
EP-30 15 30 Gallon 114 Liter 226 lbs. [103 kg]
EP-40 18 40 Gallon 152 Liter 255 lbs. [116 kg]
EP-60 18 60 Gallon 227 Liter 390 lbs. [177 kg]
EP-80 18 80 Gallon 303 Liter 445 lbs. [202 kg]
EP-100 24 100 Gallon 379 Liter 480 lbs. [218 kg]

   A B C D E F(2”) F(3”) G(2”) G(3”) H
EP-20
20 gallons
(76 liters)
in
(mm)
21”
(533)
18”
(457)
38”
(965)
25.25”
(641)
18.5”
(470)
14.75”
(375)
15.5”
(394)
18”
(457)
17.13”
(435)
13.38”
(340)
20.75”
(527)
60.5”
(1537)
EP-25
25 gallons
(95 liters)
in
(mm)
21
(533)
21.25
(540)
37.25
(946)
25.25
(641)
18.5
(470)
14.75
(375)
15.5
(394)
14.12
(358)
13.13
(333)
9.5
(241)
17
(432)
58.75
(1492)
EP-30
30 gallons
(114 liters)
in
(mm)
24”
(610)
20”
(508)
38”
(965)
28.25”
(718)
20”
(508)
16”
(406)
16.5”
(419)
15.75”
(400)
15”
(381)
11.25”
(286)
18.88”
(479)
63.5”
(1613)
EP-40
40 gallons
(152 liters)
in
(mm)
26”
(660)
22.5”
(572)
38”
(965)
30.25”
(768)
21”
(533)
17”
(432)
18”
(457)
13.5”
(343)
13.5”
(343)
8.88”
(225)
16.38”
(416)
65”
(1651)
EP-60
60 gallons
(227 liters)
in
(mm)
29.5”
(749)
26”
(660)
42”
(1067)
33.75”
(857)
20.63”
(524)
18”
(457)
19.25”
(489)
13.88”
(352)
12.88”
(327)
9.63”
(244)
17.13”
(435)
75”
(1905)
EP-80
80 gallons
(303 liters)
in
(mm)
33”
(838)
28”
(711)
45”
(1143)
37”
(940)
22.38”
(568)
19.5”
(495)
20.5”
(521)
14.88”
(378)
13.88”
(352)
11.25”
(286)
18.63”
(473)
81”
(2058)
EP-100
100 gallons
(379 liters)
in
(mm)
35.5”
(902)
30”
(762)
48”
(1219)
40”
(1016)
23.63”
(600)
21.5”
(546)
22.5”
(572)
15”
(381)
14.5”
(368)
13”
(330)
20.5”
(521)
87”
(2210)

  208V 220V 240V 380V 415V 480V 600V
12
1 57.7 54.5 50.0 N/A N/A N/A N/A
3 33.3 31.5 28.9 18.2 16.7 14.4 11.6
15
1 72.1 68.2 62.5 N/A N/A N/A N/A
3 41.6 39.4 36.1 22.8 20.9 18.0 14.5
18
1 86.5 81.8 75.0 N/A N/A N/A N/A
3 50.0 47.2 43.3 27.3 25.0 21.7 21.7
24 3 66.6 63.0 57.7 36.5 33.4 28.9 23.1
33 3 91.6 86.6 79.4 50.1 45.9 39.7 31.8

  
EP-20,25 12 N/A
EP-30 15 N/A
EP-40 18 24
EP-60 18 24 or 33
EP-80 18 24 or 33
EP-100 24 33
SERVICE CONNECTIONS

Related product manuals