EasyManua.ls Logo

CVO Fire Fire Wave - 6.2 Burner Ventilation Requirements

CVO Fire Fire Wave
42 pages
Print Icon
To Next Page IconTo Next Page
To Next Page IconTo Next Page
To Previous Page IconTo Previous Page
To Previous Page IconTo Previous Page
Loading...
Page 7 of 42
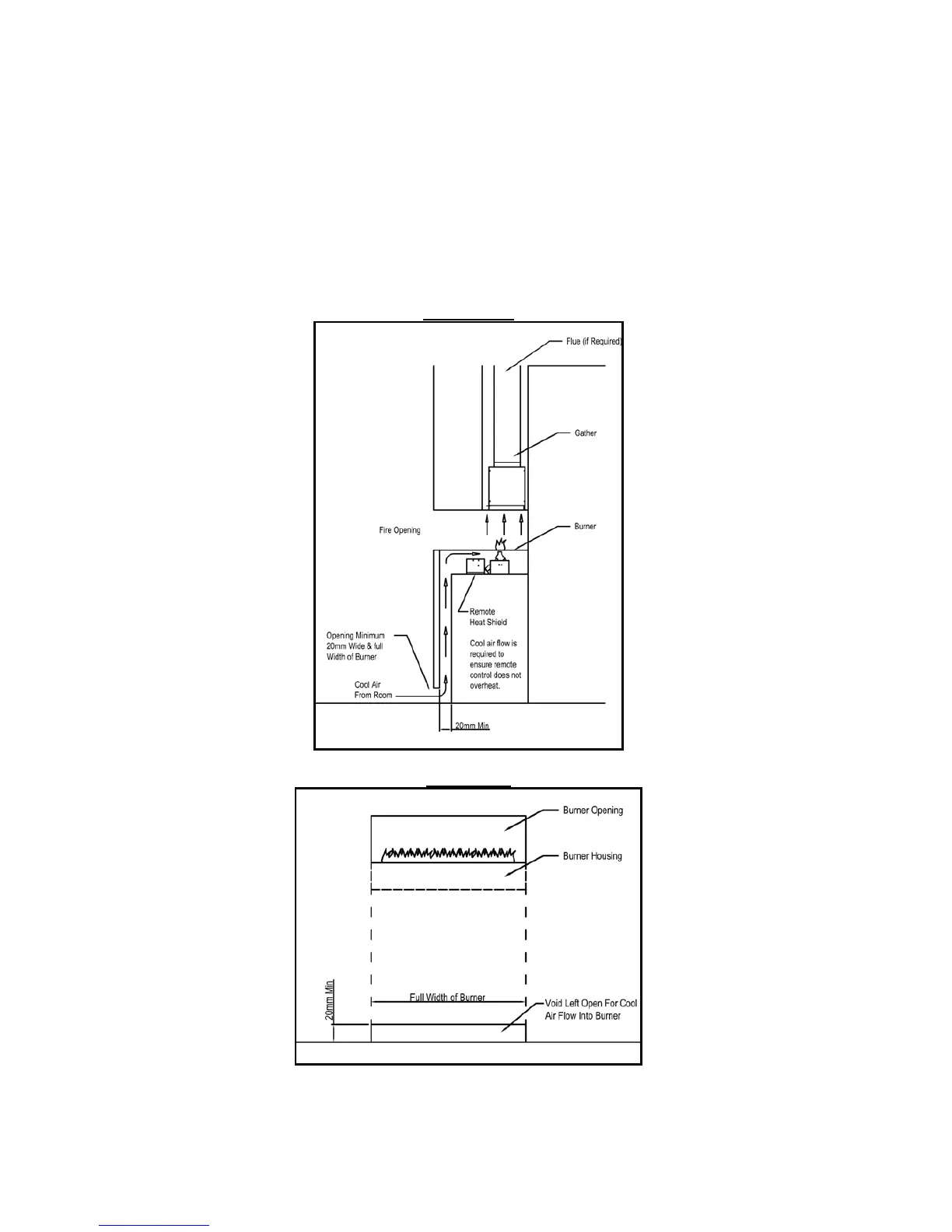
6.2 Burner Ventilation Requirements
This fire is designed to be used as a “trimless” fire. For the fire to work correctly additional burner
ventilation must be planned to provide fresh air into the burner box. This work should be planned
before starting to install the fire. This additional burner air must be routed from “within the room
the fire is installed” directly in to the burner box. Failure to observe this will result in serious heat
damage to the remote system. This will not be covered by the warranty. The normal way to do this is
by creating a ducted space behind the plasterboard from the skirting level. The air vent must be at
least 20mm deep and the full width of the burner flame. If it is positioned differently the flame will
become unstable. The system must be sealed so that air can only travel in one direction from the
room into the burner box and cannot travel up the back of the enclosure. If the air is not sealed
flame reversal will occur. See the images below
SIDE VIEW
FRONT VIEW

Related product manuals