EasyManua.ls Logo

Daikin AGZ040E - Isolator Information

Daikin AGZ040E
112 pages
Print Icon
To Next Page IconTo Next Page
To Next Page IconTo Next Page
To Previous Page IconTo Previous Page
To Previous Page IconTo Previous Page
Loading...
IsolaTor InformaTIon
www.DaikinApplied.com 29 IOM 1206-7 • TRAILBLAZER
MODEL AGZ CHILLERS
IsolaTor InformaTIon
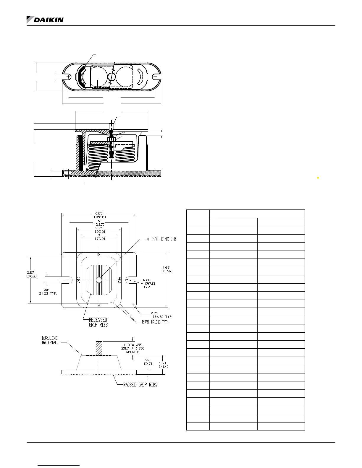
Figure 39: Spring Isolator
Figure 40: Rubber-in-Shear (RIS) Isolator
In all cases, set the unit in place and level. If antiskid pads are
used do not use hold down bolts. If hold down bolts are used
do not use anti-skid pads.
When spring isolators are required, install springs running
under the main unit supports. Unit should be installed on
blocks or shims at the listed free height. Isolator springs should
not be loaded until the installation is complete, then adjust the
springs to the vendor listed compression gap for the load point.
When securing the isolator, do not over-tighten the mounting
bolts. Over-tightening may result in cracking of the cast isolator
housing and will have a negative impact on the isolation effect.
Installation of spring isolators requires exible piping
connections and at least three feet of exible electrical conduit
to avoid straining the piping and transmitting vibration and
noise.
Mounting locations for each model can be found in the
“Dimensions and Weights - Packaged Units” section of this
document, starting on page 20.
Optional seismic isolator information begins on page 31.
Contact a Daikin Applied sales representative for isolator
information related to units with other n materials.
Table 7: Isolator Kits
9.25 [235.0]
10.5 [266.7]
.56 [14.3]
7.75 [196.9]
3
[76.2]
.62 [15.8]
6.2
5
[127.0]
FREE HT.
5\X [127.0]
OPER. HT.
.5 [12.7] DIA.
POSITIONING
PIN
.25 [6.4]
ELASTOMERIC PAD
ADJ. BOLT
ELASTOMERIC
SNUBBER
.625
[15.9]
.25 TO .5 GAP
[6.4 to 12.7]
AGZ-E
Model
Microchannel - Packaged Units
Spring Isolators RIS Isolators
030 332320102 332325101
035 332320102 332325101
040 332320102 332325101
045 332320132 332325101
050 332320132 332325101
055 332320132 332325101
060 332320132 332325101
065 332320132 332325101
070 332320132 332325101
075 332320117 332325101
080 332320117 332325101
090 332320117 332325101
100 332320117 332325101
110 332320123 332325113
120 332320124 332325113
130 332320124 332325113
140 332320106 332325113
150 332320106 332325113
161 332320111 332325113
170 332320111 332325113
180 332320111 332325113
190 332320108 332325114
210 332320108 332325114
225 332320126 332325114
240 332320126 332325114

Related product manuals