EasyManua.ls Logo

Daikin FAA-B - To Drill a Wall Hole; To Remove the Pipe Port Cover

Daikin FAA-B
24 pages
Print Icon
To Next Page IconTo Next Page
To Next Page IconTo Next Page
To Previous Page IconTo Previous Page
To Previous Page IconTo Previous Page
Loading...
12 Unit installation
Installation and operation manual
14
FAA71+100BUV1B
Split system air conditioner
3P654518-1A – 2021.03
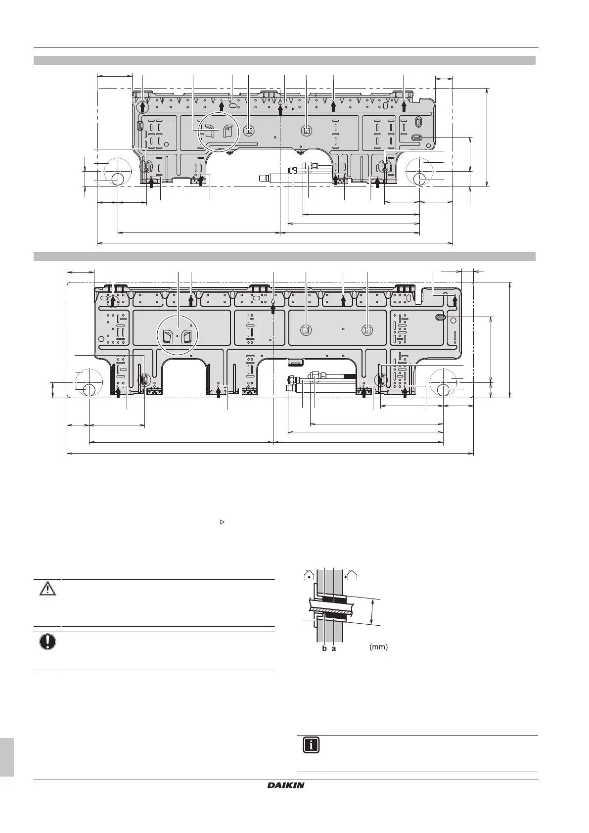
A
(mm)
60 85
480 411
1050
104 98
344
389
44
44
103
52
101
290
d
e
ca a ac
ia
d
e
b
a a a a
f
f
gh
B
(mm)
1200
543 503
16465
186 89
393
459
45
45
80
36
194
340
a a a
a
a a aa
i
b c c
d
e
d
e
f
f
gh
A Pattern for installation with mounting plate for class 71
B Pattern for installation with mounting plate for class 100
a Recommended fixing spots
b Pocket for the pipe port cover
c Tabs for placing a spirit level
d Through-the-wall hole Ø80mm
e Drain hose position
f Position for the tape measure at symbol " "
g Gas pipe end
h Liquid pipe end
i Temporary fixing hole
12.2.2 To drill a wall hole
CAUTION
For walls containing a metal frame or a metal board, use a
wall embedded pipe and wall cover in the feed-through
hole to prevent possible heat, electrical shock, or fire.
NOTICE
Be sure to seal the gaps around the pipes with sealing
material (field supply), in order to prevent water leakage.
1 Drill a 80 mm large feed-through hole in the wall with a
downward slope towards the outside.
2 Insert a wall embedded pipe into the hole.
3 Insert a wall cover into the wall pipe.
Ø80
a
b
c
a Wall embedded pipe (field supply)
b Putty (field supply)
c Wall hole cover (field supply)
4 After completing wiring, refrigerant piping and drain piping, do
NOT forget to seal the gap with putty.
12.2.3 To remove the pipe port cover
INFORMATION
To connect the piping on right-side, right-bottom, left-side
or left-bottom, the pipe port cover MUST be removed.

Table of Contents

Related product manuals