EasyManua.ls Logo

Daikin FT35DVM - Page 254

Daikin FT35DVM
268 pages
Print Icon
To Next Page IconTo Next Page
To Next Page IconTo Next Page
To Previous Page IconTo Previous Page
To Previous Page IconTo Previous Page
Loading...
Si01-501 Wiring Diagrams
Appendix 245
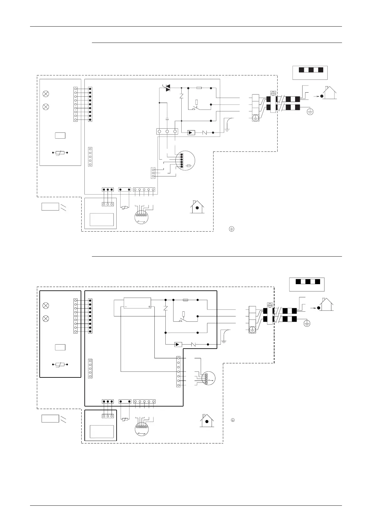
FT25DSG
FT35DSG
NOTE THAT OPERATION WILL
RESTART AUTOMATICALLY IF
THE MAIN POWER SUPPLY IS
TURNED OFF AND THEN BACK
ON AGAIN.
CONTROLLER
WIRELESS
PCB3
REMOTE
LED2
H2P
LED1
H1P
S1W
R1T
t°
S27
S26
PCB2
S21
RECEIVER
HA
SIGNAL
PCB1
S29
S28
R2T
S32
t°
1
RED
M1S
M
S6
ORG
YLW
S7
S1
PNK
5
BLU
BLU
PPL
BLK
WHT
C70
RED
GRY
V1
t°
M
~
SA1
INDOOR
3.15A
F1U
140°C
M1F
MR2
V2
H3
H2
H1
FG
SA1 : SURGE ARRESTER
S1W : OPERATION SWITCH
V1,V2 : VARISTOR
PCB1~PCB3 : PRINTED CIRCUIT BOARD
S1~S38 : CONNECTOR
R1T,R2T : THERMISTOR
X1M : TERMINAL STRIP
M1S : SWING MOTOR
MR2 : MAGNETIC RELAY
F1U : FUSE
M1F : FAN MOTOR
FG : FRAME GROUND
H1P~H2P : PILOT LAMP
C70 : RUNNING CAPACITOR
GRN
/
YLW
WHT
RED
BLK
: PROTECTIVE EARTH
X1M
2
3
1
FIELD WIRING.
CAUTION
2
3
1
OUTDOOR
3D048853
WIRELESS
REMOTE
CONTROLLER
PCB3
LED2
H2P
LED1
H1P
S1W
R1T
t°
S27 S26
PCB2
S21
HA
SIGNAL
RECEIVER
PCB1
S29
S28
R2T
S32
t°
~
RECTIFIER
1
M1S
M
S6
~
5
V1
7
1
SA1
S1
3.15A
F1U
MR2
V2
H2
H3
H1
INDOOR
M1F
FG
M
X1M
2
3
1
FIELD WIRING.
2
3
1
OUTDOOR
3D048854
FG : FRAME GROUND
F1U : FUSE
H1P~H2P : PILOT LAMP
M1F : FAN MOTOR
M1S : SWING MOTOR
MR2 : MAGNETIC RELAY
PCB1~PCB3 : PRINTED CIRCUIT BOARD
R1T
,
R2T : THERMISTOR
S1~S38 : CONNECTOR
S1W : OPERATION SWITCH
SA1 : SURGE ARRESTER
V1
,
V2 : VARISTOR
X1M : TERMINAL STRIP
: PROTECTIVE EARTH
NOTE THAT OPERATION WILL
RESTART AUTOMATICALLY IF
THE MAIN POWER SUPPLY IS
TURNED OFF AND THEN BACK
ON AGAIN.
CAUTION
RED
ORG
YLW
PNK
BLU
GRN
WHT
RED
BLK
/
YLW
WHT
BRN
RED
BLU
ORG

Table of Contents