EasyManua.ls Logo

Daikin FTKS35D3VMW - Page 344

Daikin FTKS35D3VMW
355 pages
To Next Page IconTo Next Page
To Next Page IconTo Next Page
To Previous Page IconTo Previous Page
To Previous Page IconTo Previous Page
Loading...
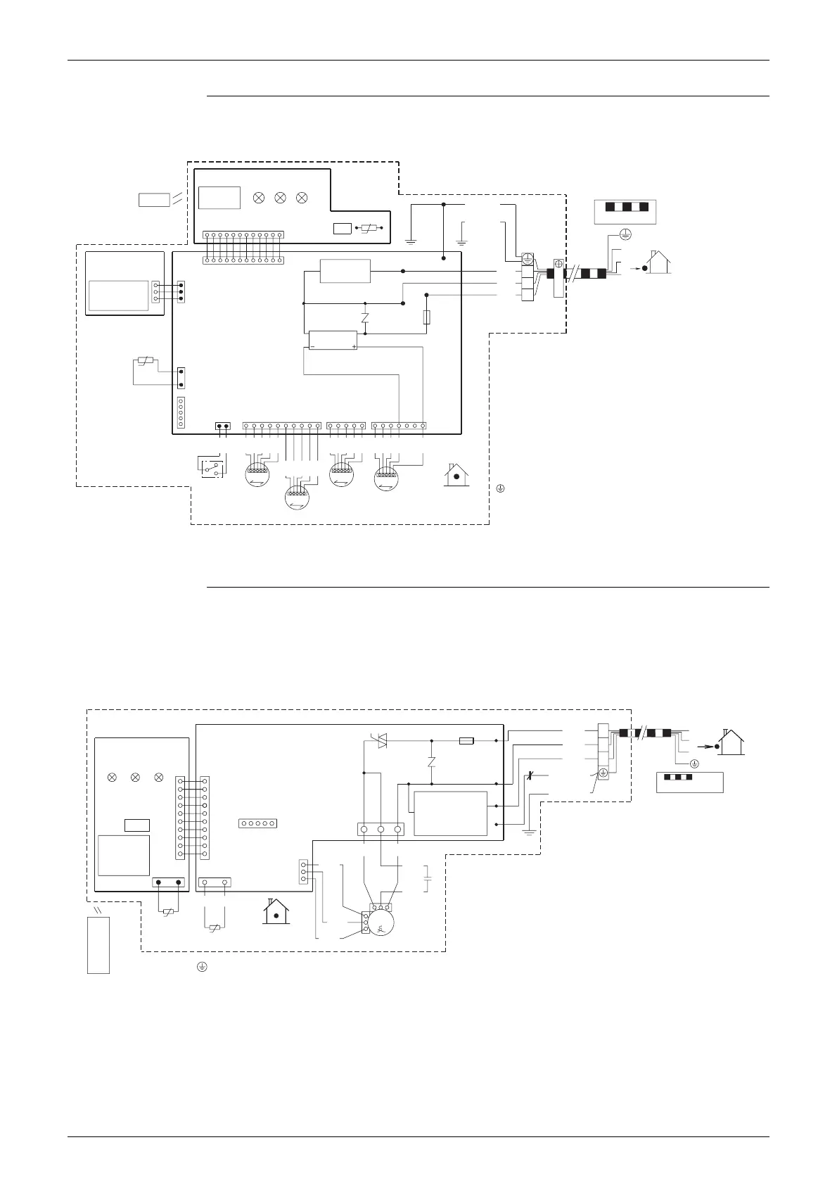
SiENBE12-713 Wiring Diagrams
Appendix 333
FTXG25EV1BW(S), FTXG35EV1BW(S), CTXG50EV1BW(S)
2.1.2 Duct Connected Type
FDKS25CAVMB, FDKS35CAVMB, FDKS50CVMB, FDKS60CVMB, FDKS25EAVMB, FDKS35EAVMB
FDXS25CAVMB, FDXS35CAVMB, FDXS50CVMB, FDXS60CVMB, FDXS25EAVMB, FDXS35EAVMB
PCB3
INFRARED
REMOTE
CONTROL
R1T
t°
S36
S36
PCB1
S32
S21
HA
PCB2
S2W
S51
BLK
WHT
S47
S46
LED4
RED
H4P
M1S
M
ORG
YLW
LED3
H3P
PNK
S41
BLU
RED
M2S
LED2
M
H2P
ORG
YLW
~
PNK
RECTIFIER
BLU
RED
M3S
S1W
S49
M
ORG
~
YLW
PNK
R2T
BLU
t°
WHT
M1F
S1
M
ORG
H3
H2
BRN
4
BLU
F1U
E1
7
RED
FG
H1B
3.15A
indoor
E2
GRN
/
YLW
GRN
/
YLW
WHT
BLK
RED
X1M
2
3
1
: FLAME GRUND
: FUSE
: PILOT LAMP
: FAN MOTOR
: SWING MOTOR
: PRINTED CIRCUIT BOARD
: THERMISTOR
: CONNECTOR
: OPERATION SWITCH
: PANEL LIMIT SWITCH
: TERMINAL STRIP
: PROTECTIVE EARTH
: EARTH TERMINAL(SHIELD PLATE)
: EARTH TERMINAL(HEAT. EX)
FIELD WIRING.
CAUTION
2
3
1
outdoor
FG
F1U
H2P~H4P
M1F
M1S, M2S, M3S
PCB1, PCB2, PCB3
R1T, R2T
S1~S51
S1W
S2W
X1M
E1
E2
NOTE THAT OPERATION WILL
RESTART AUTOMATICALLY IF
THE MAIN POWER SUPPLY IS
TURNED OFF AND THEN BACK
ON AGAIN.
TRANSMISSION
CIRCUIT
SIGNAL
RECEIVER
INTELLIGENT
EYE SENSOR
3D050493
PCB2
LED
H1P
LED
H2P
S1W
LED
H3P
2
RTH1
R1T
t°
10
1
S1
1
C1
BRN
F1U :
S26
2
PCB1
S32
R2T
t°
1
10
:
:
BRN
S21
1
FUSE
(
CAPACITOR
(
M1F
)
PROTECTIVE EARTH
indoor
3
1
S7
BLU
GRY
PPL
S1
)
RED
6
V1TR
1
M1F
~
M
3
BLK
Q1M
130°C
1
WHT
YLW
C1
3.15A
F1U
Q1M
M1F
V1TR
S1W
X1M
Z1C
H1P ~ H3P
R1T ~ R2T
PCB1 ~ PCB2
S1 ~ S32, RTH1
GND
H2
H3
H1
: FAN MOTOR
: PRINTED CIRCUIT BOARD
: NOISE FILTER
(
FERRITE CORE
)
: PHASE CONTROL CIRCUIT
: TERMINAL BLOCK
: OPERATION SWITCH
: THERMAL PROTECTOR
(
M1F EMBEDDED
)
: THERMISTOR
: PILOT LAMP
Z1C
N=2
: CONNECTOR
GRN
GRN
WHT
/
/
BLK
RED
YLW
YLW
X1M
2
3
1
CAUTION
FIELD WIRING.
2
3
1
outdoor
NOTE THAT OPERATION WILL
RESTART AUTOMATICALLY IF
THE MAIN POWER SUPPLY IS
TURNED OFF AND THEN BACK
ON AGAIN.
TRANSMISSION
CIRCUIT
TERMINAL FOR
CENTRALIZED CONTROL
SIGNAL
RECEIVER
INFRARED
REMOTE
CONTROL
3D045012K

Table of Contents

Related product manuals