EasyManua.ls Logo

Daikin FWKE-E - Page 117

Daikin FWKE-E
131 pages
Print Icon
To Next Page IconTo Next Page
To Next Page IconTo Next Page
To Previous Page IconTo Previous Page
To Previous Page IconTo Previous Page
Loading...
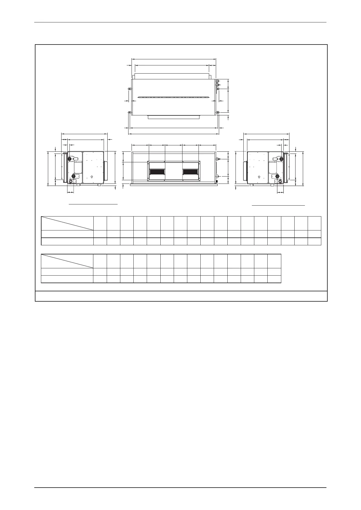
Outlines & Dimensions
113
Model: FUD20/25B
A
V
Y X W
T
Z
ZC
ZBZD
ZAZ
U
Q
O
L M N M L
S R
ZE
V
YXW
T
Z
ZC
ZB
ZD
ZAZ
U
B HE
I
F
JK
G
C
D
F
G
P
LEFT PIPING (OPTIONAL)
RIGHT PIPING (STANDARD)
NOTE:
FOR HORIZONTAL AIR DISCHARGE
Dimension
Model
A B C D E F G H I J K L M N O P Q
FUD20B
1402 1232 1462 1502 53 50 20 117 163 394 48 287 270 288 177 295 65
FUD25B
1402 1232 1462 1502 53 50 20 117 163 394 48 287 270 288 177 295 65
Dimension
Model
R S T U V W X Y Z ZA ZB ZC ZD ZE
FUD20B
302
103 33 72 761 60 605 96 35 537 437 572 100 132
FUD25B 289 103 33 72 761 60 605 96 35 537 437 572 100 145
Note: Dimension in mm

Related product manuals